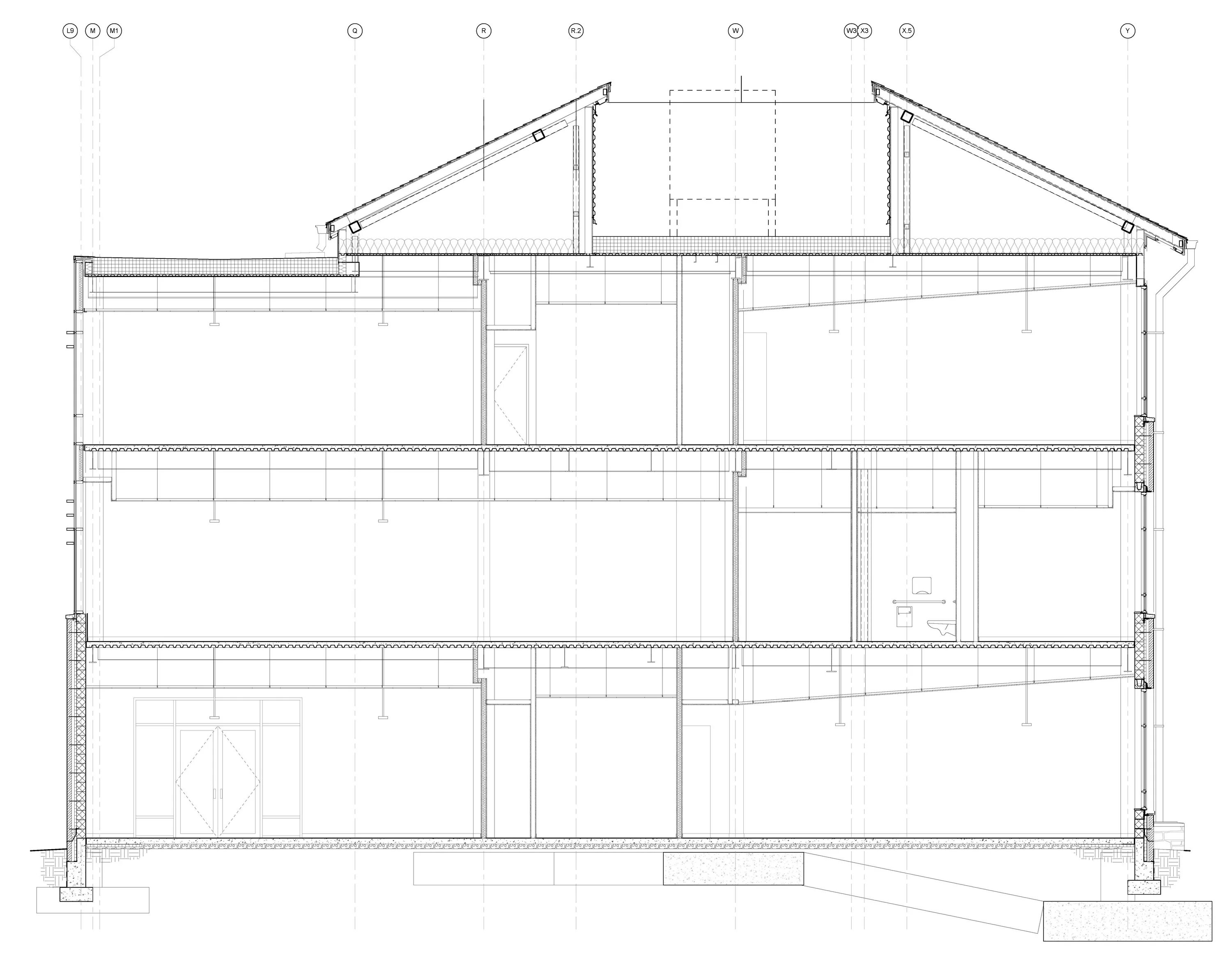
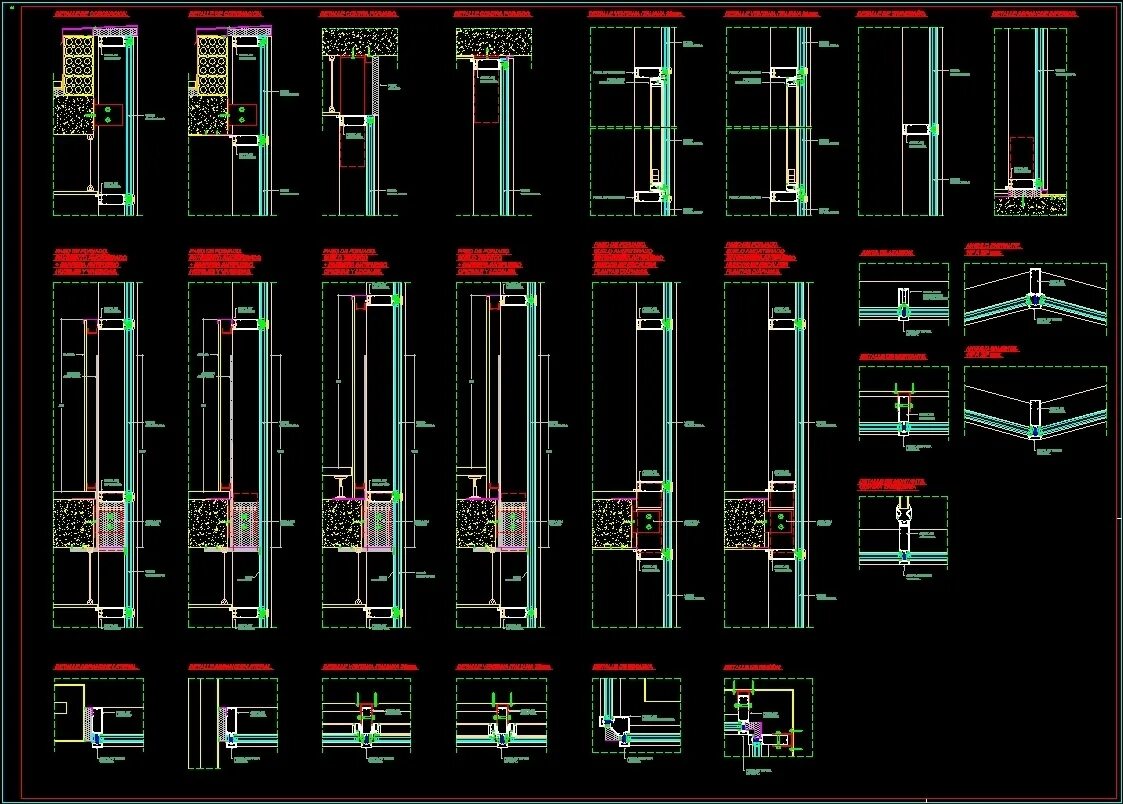
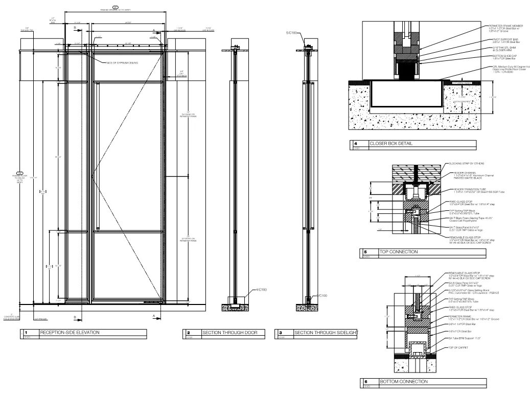
System section