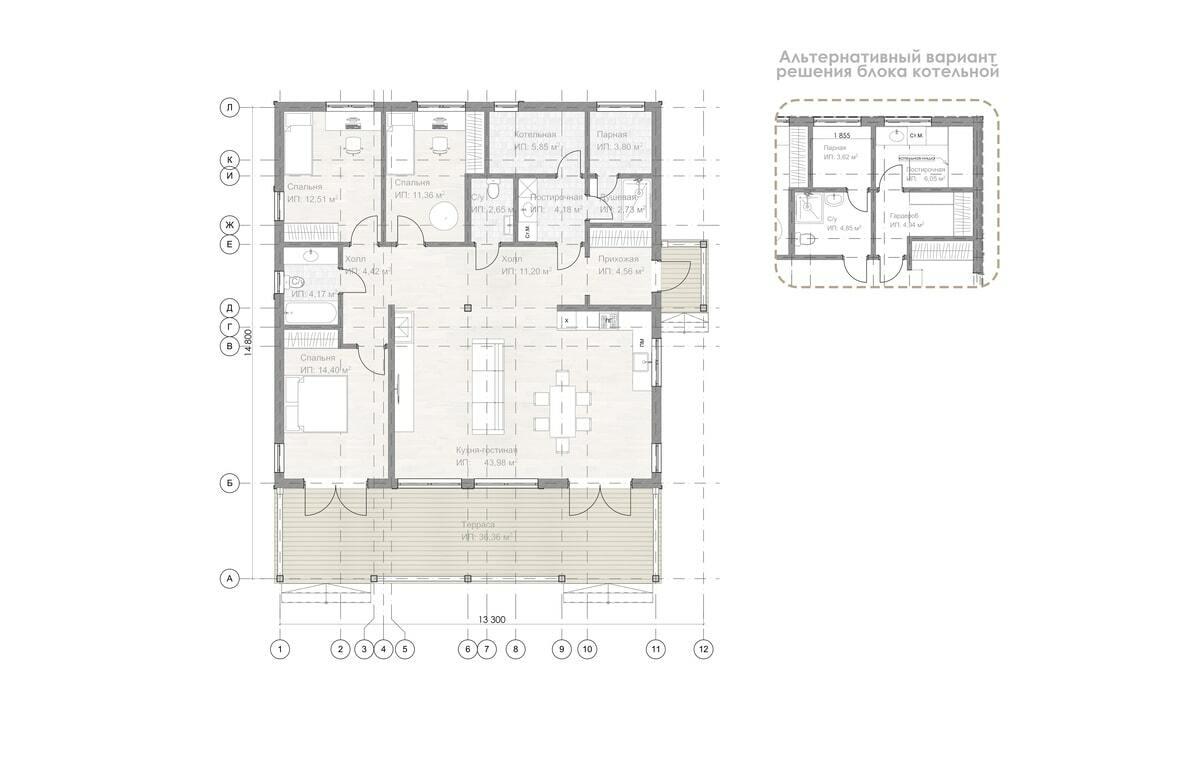
Take dom