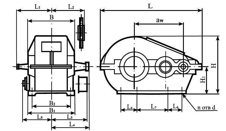
Тип 2 400