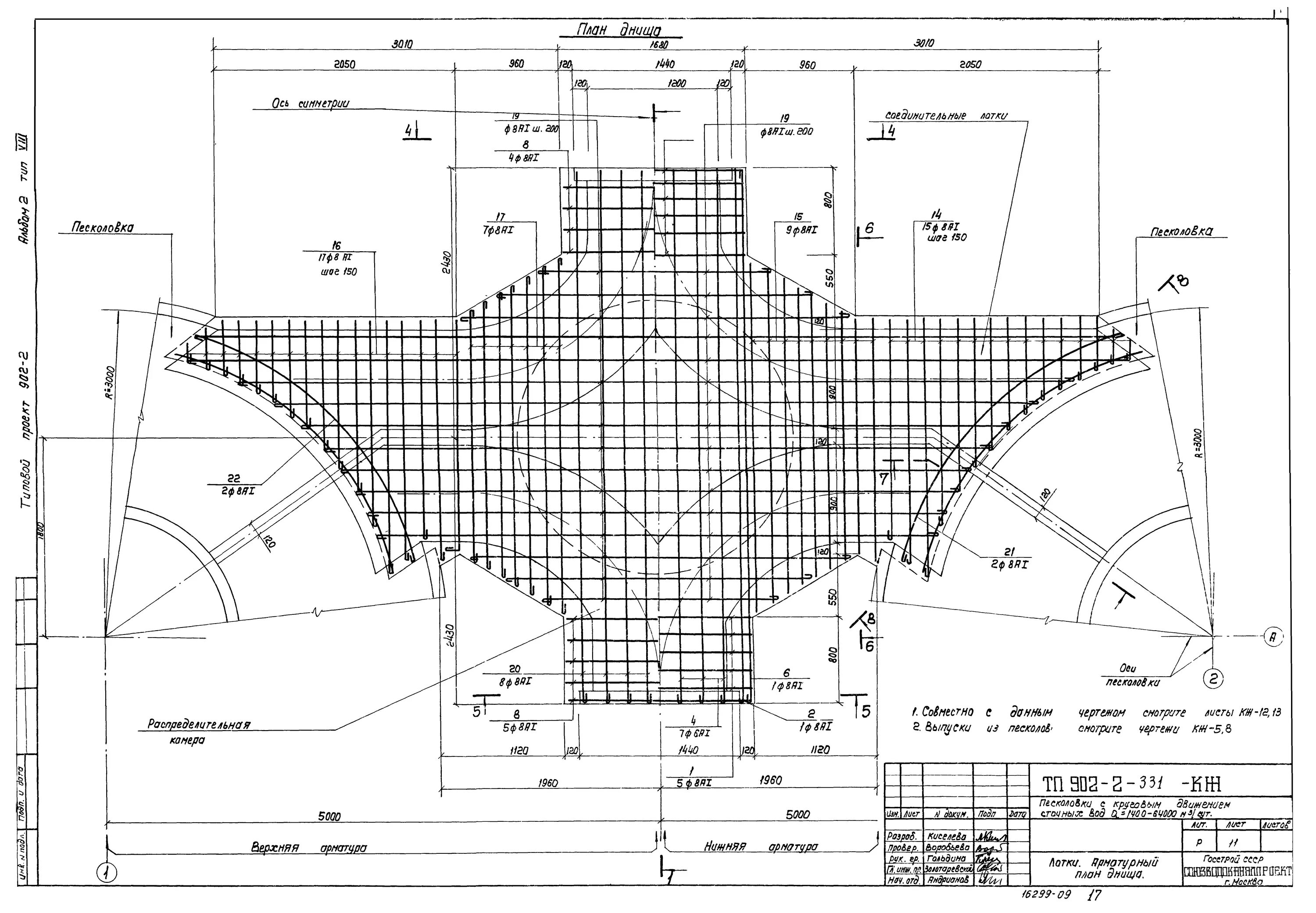
Тип 8 no 8181