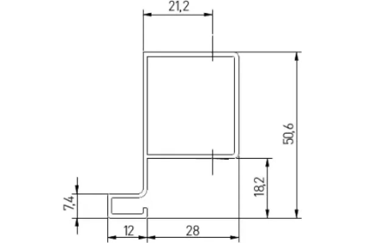
Тип j 2