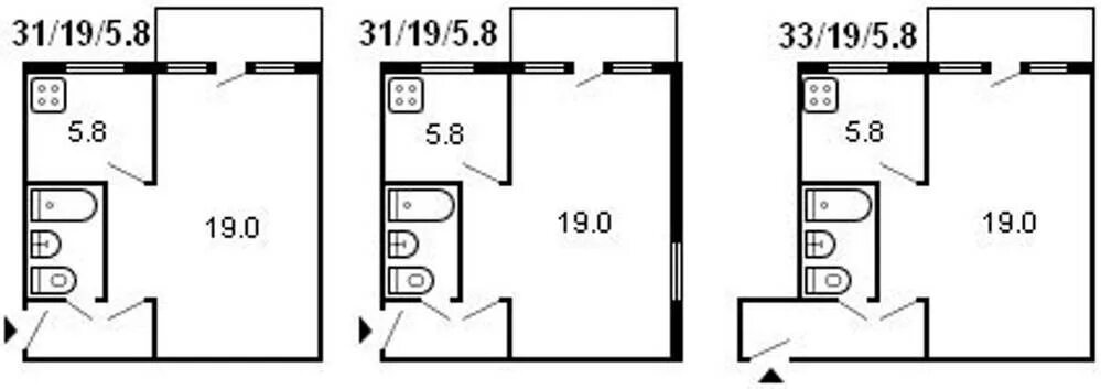
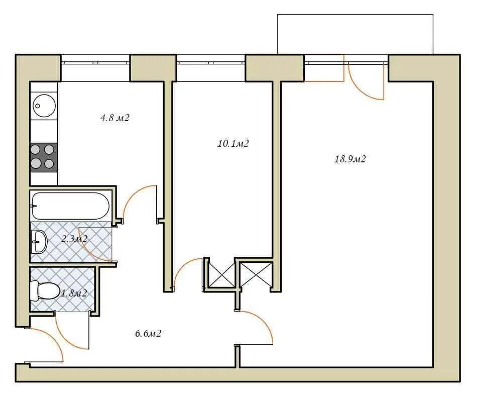
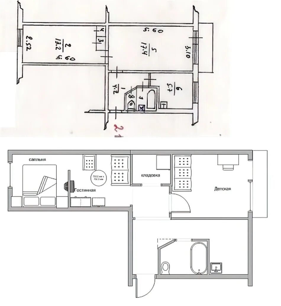
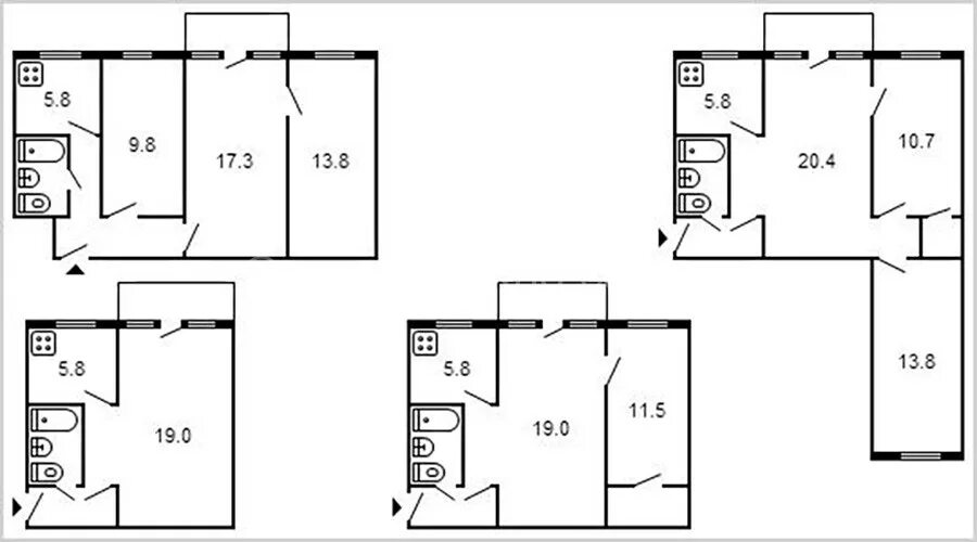
Тип квартиры хрущевка