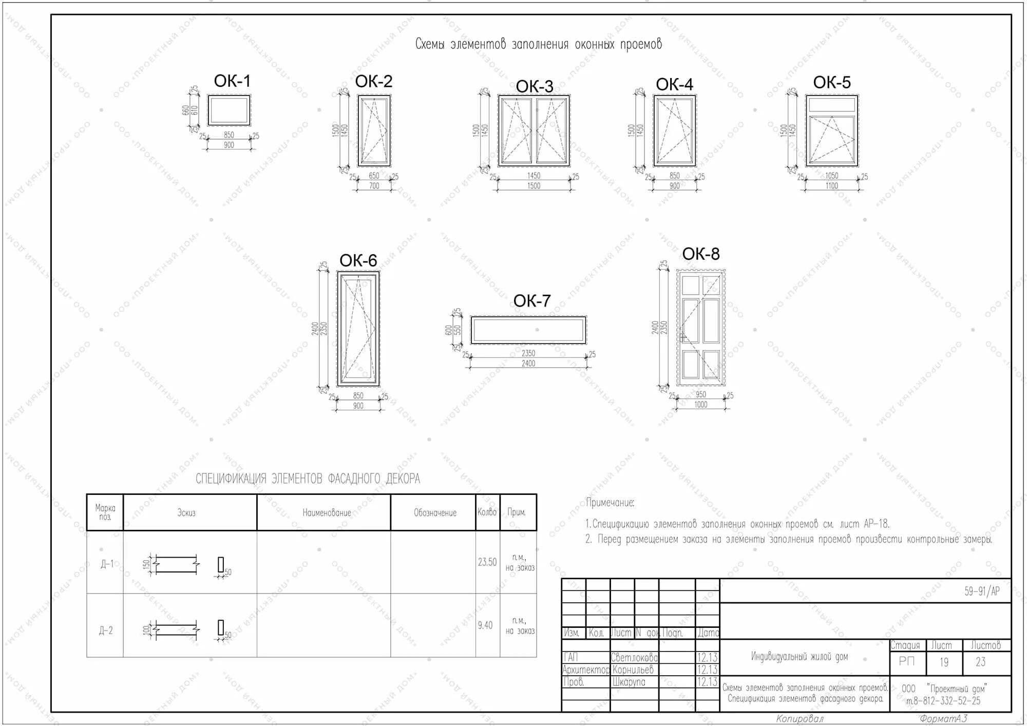
Тип заполнения проемов 1