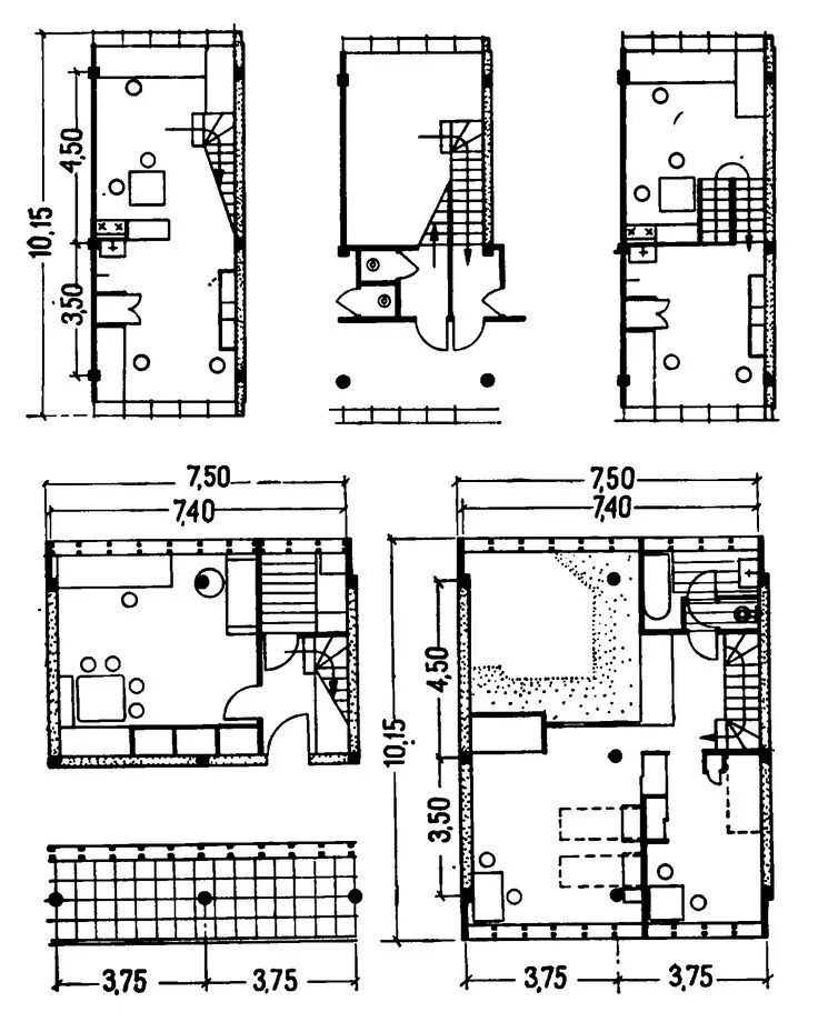
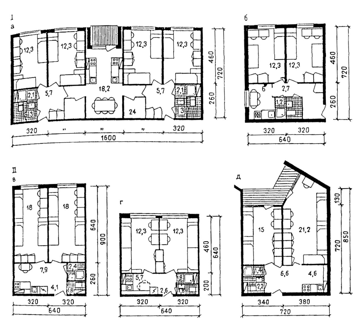
Тип жилых ячеек