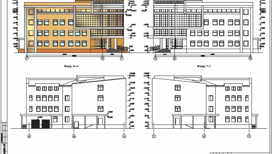
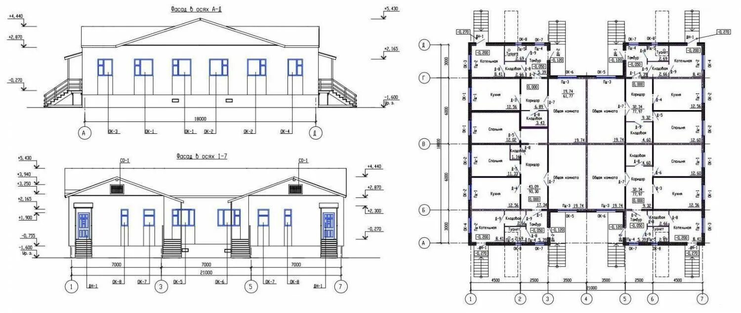
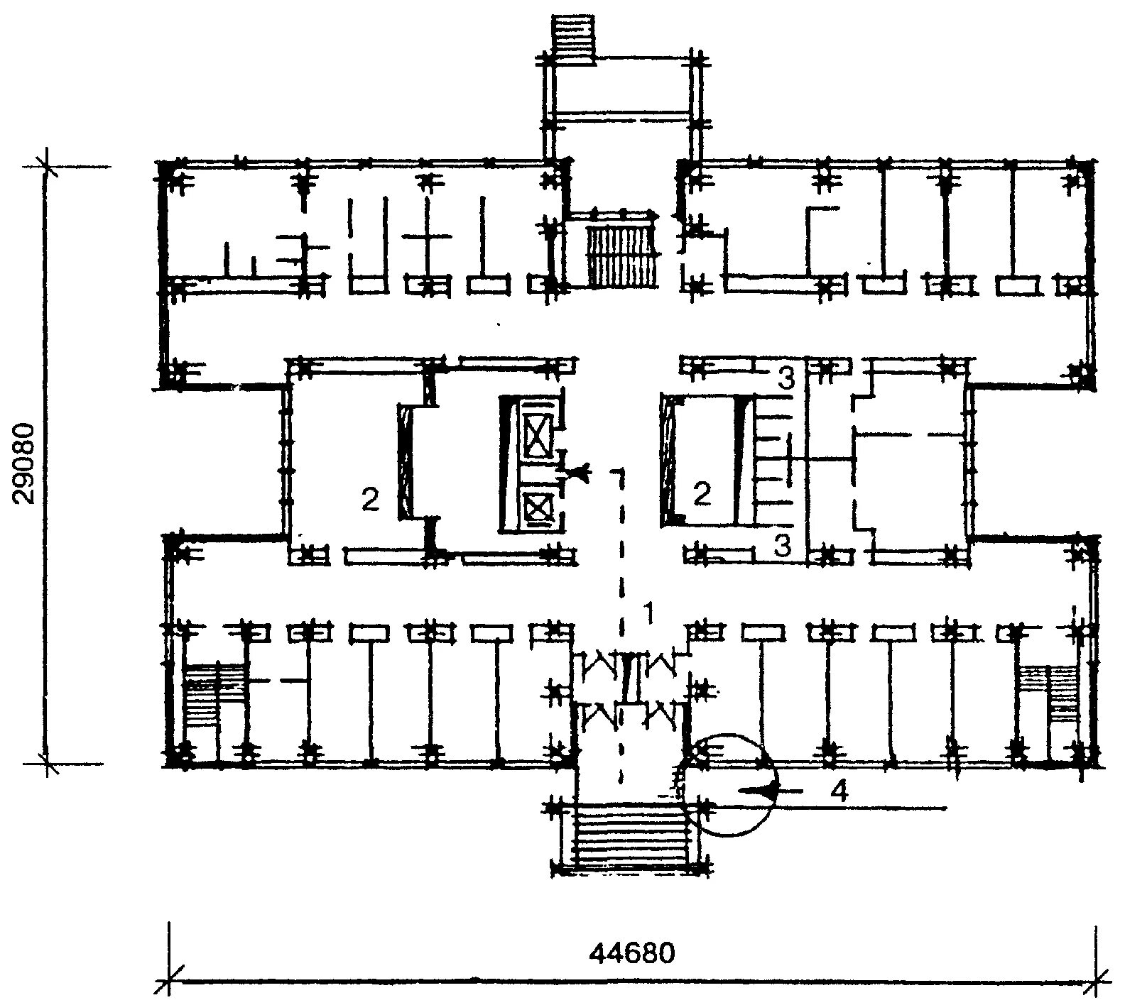
Типовой проект общественного здания