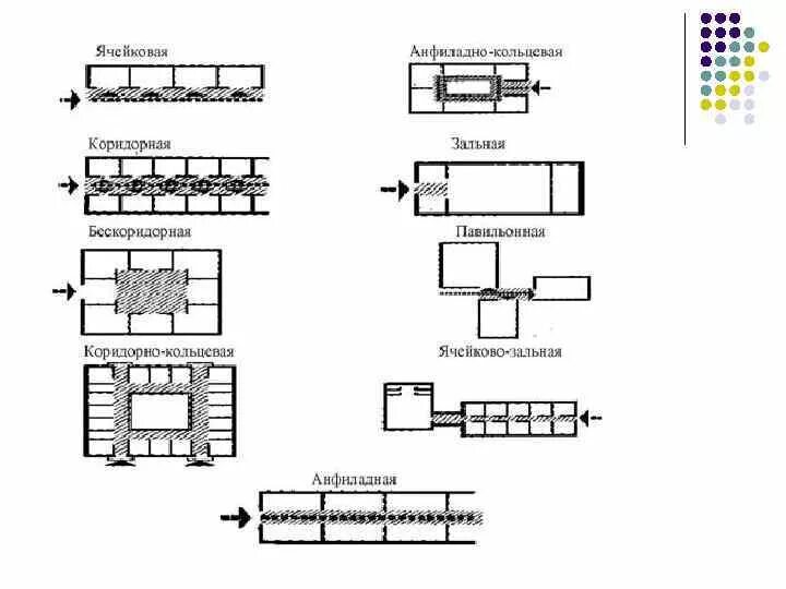
Типы планировок зданий