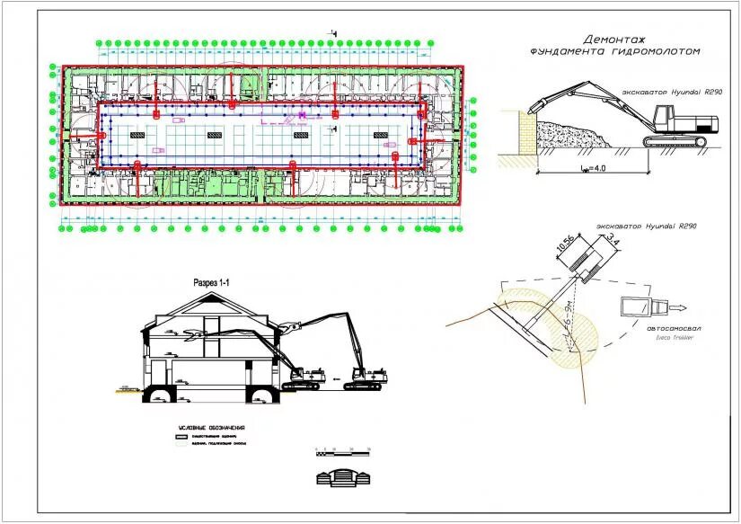
Тк демонтаж