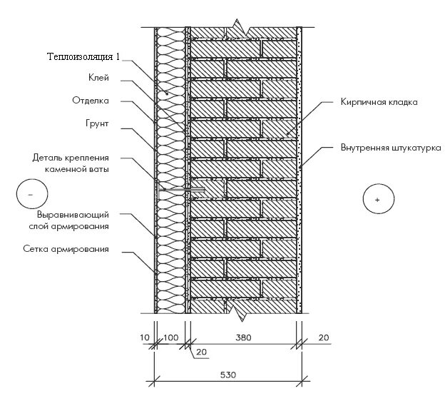
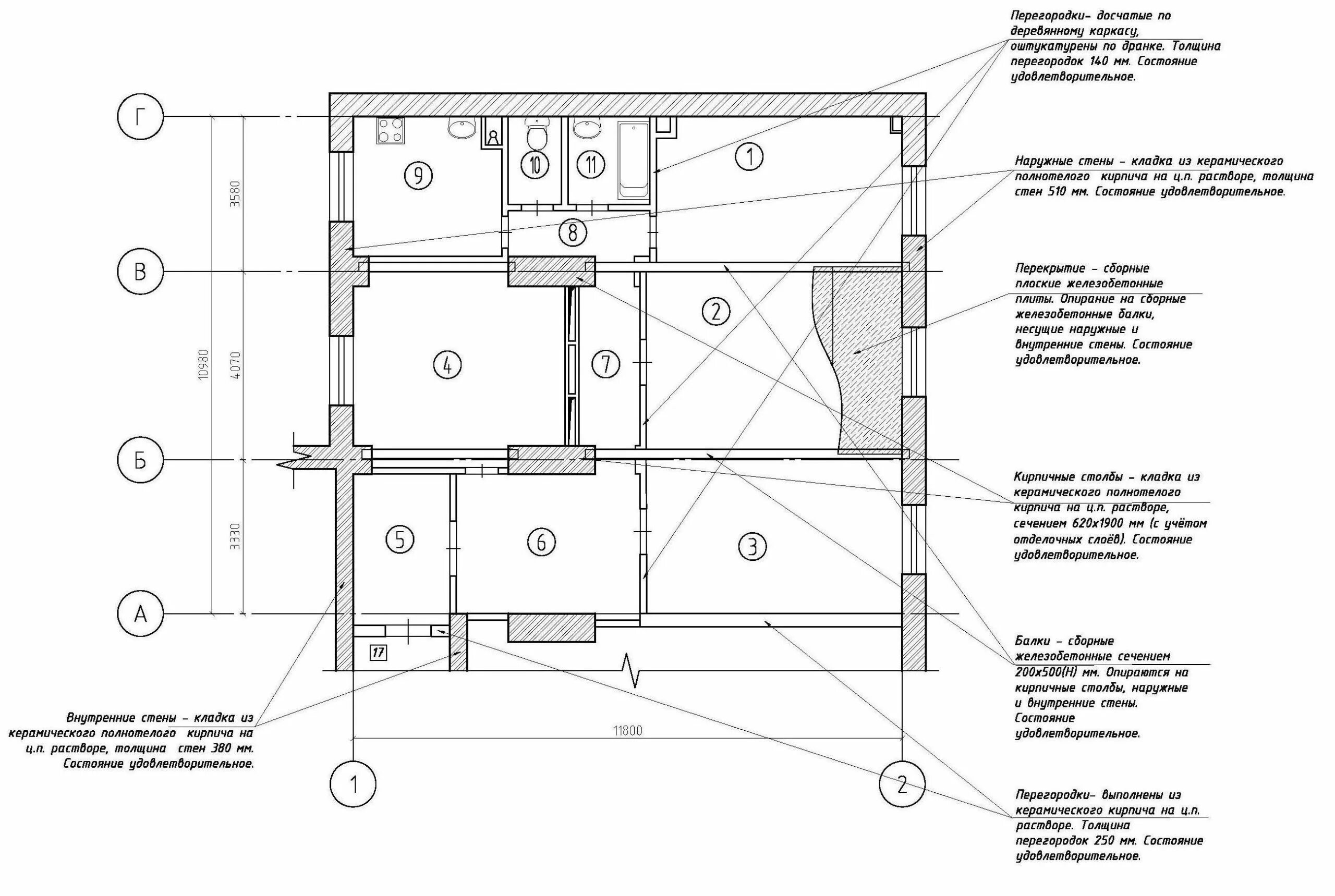
Толщины стен зданий