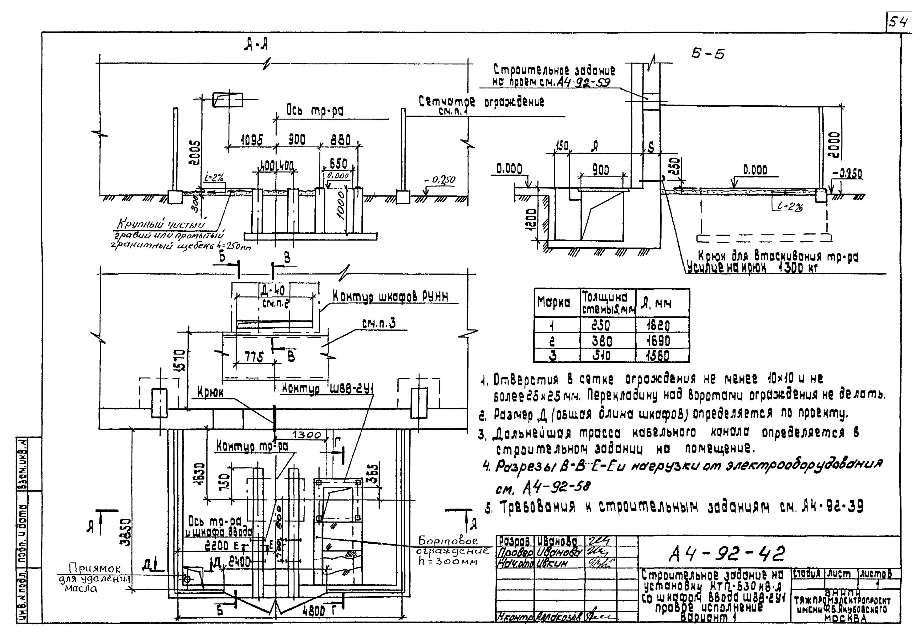
Тп проект работа