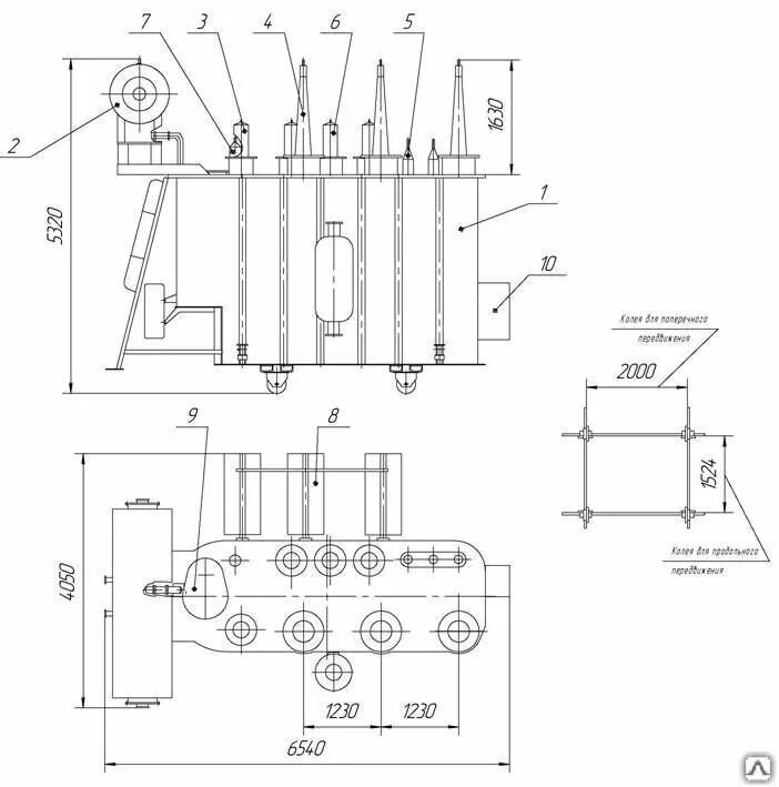
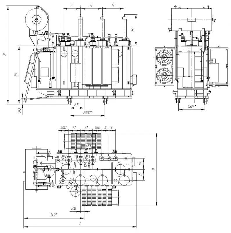
Трансформатор тдн 25000