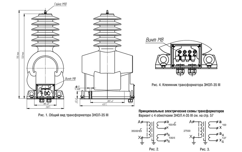
Трансформатор тока 3 кв