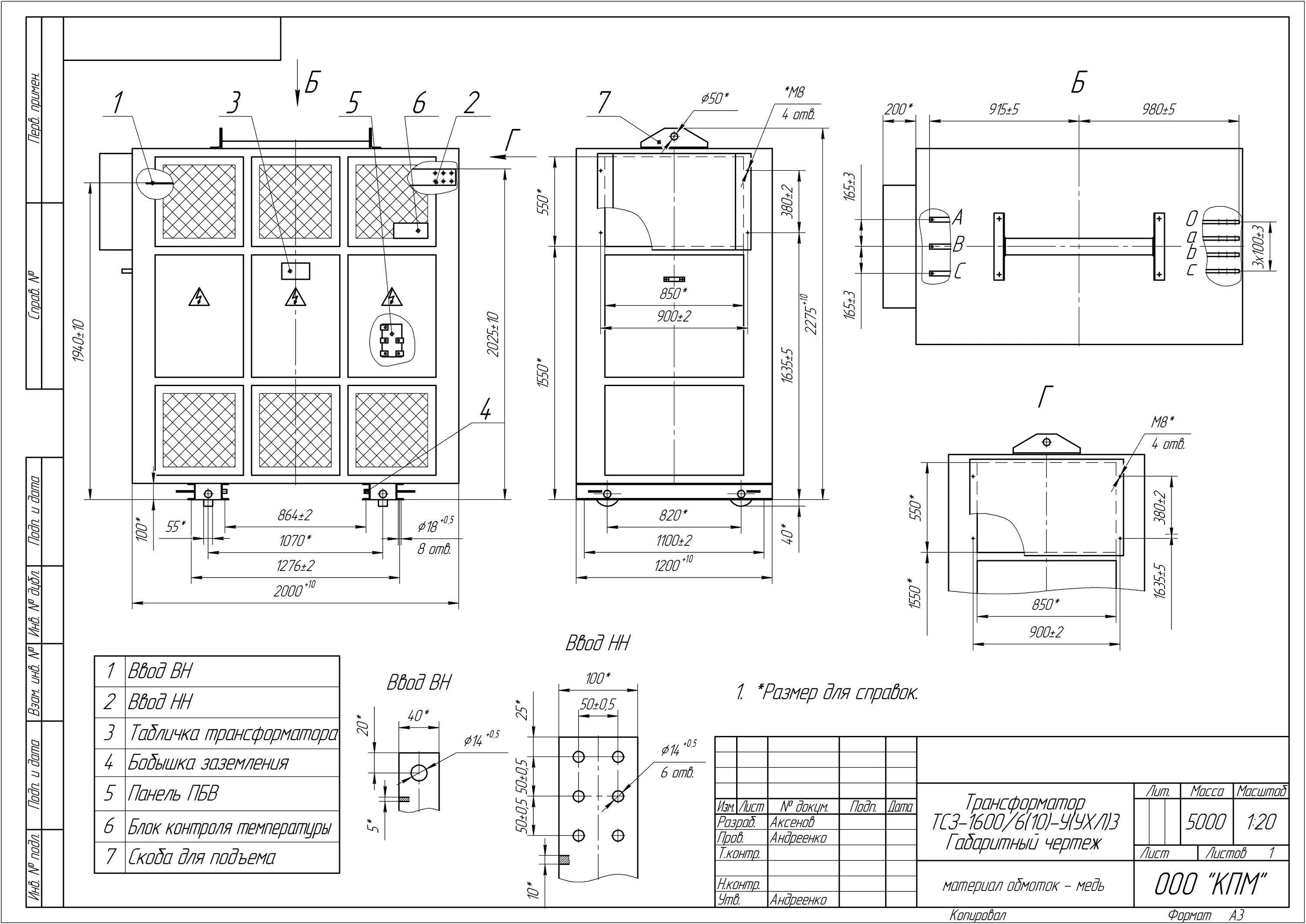
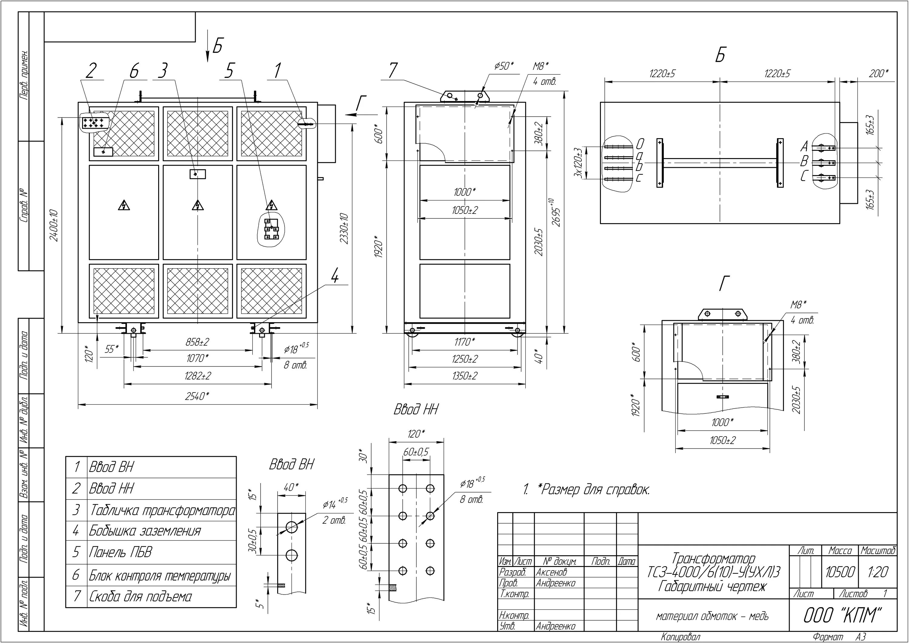
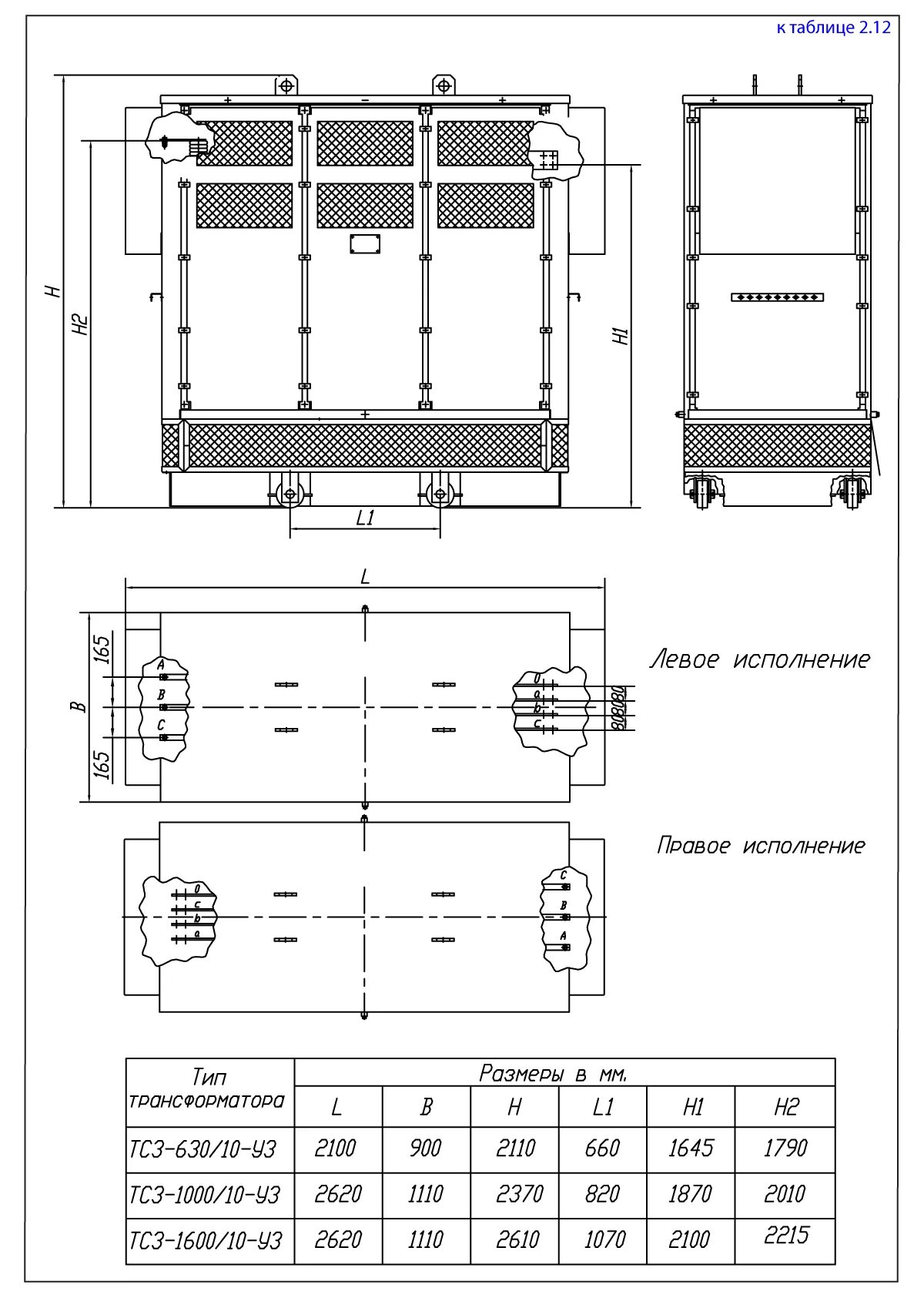
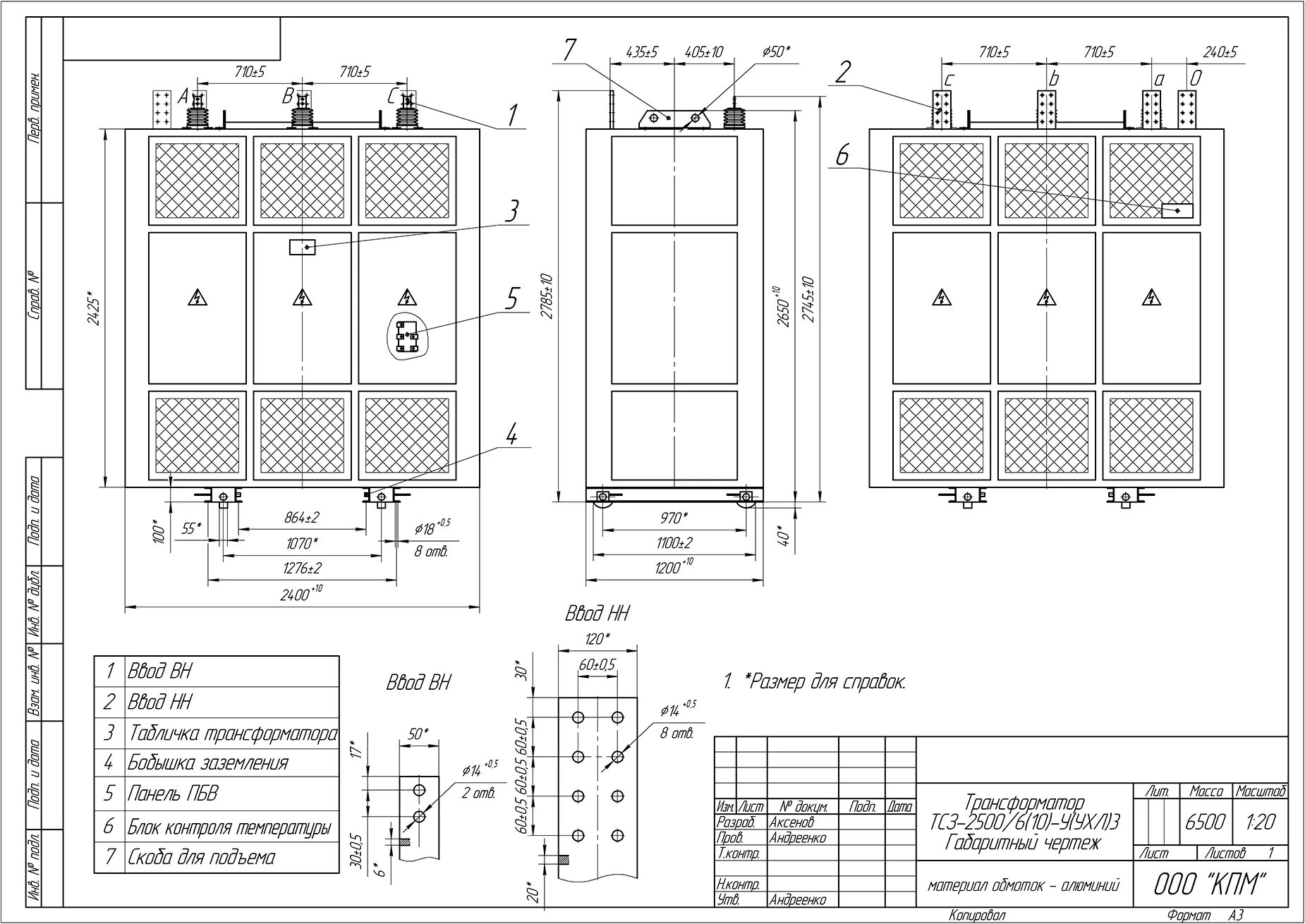
Трансформатор тсз 4