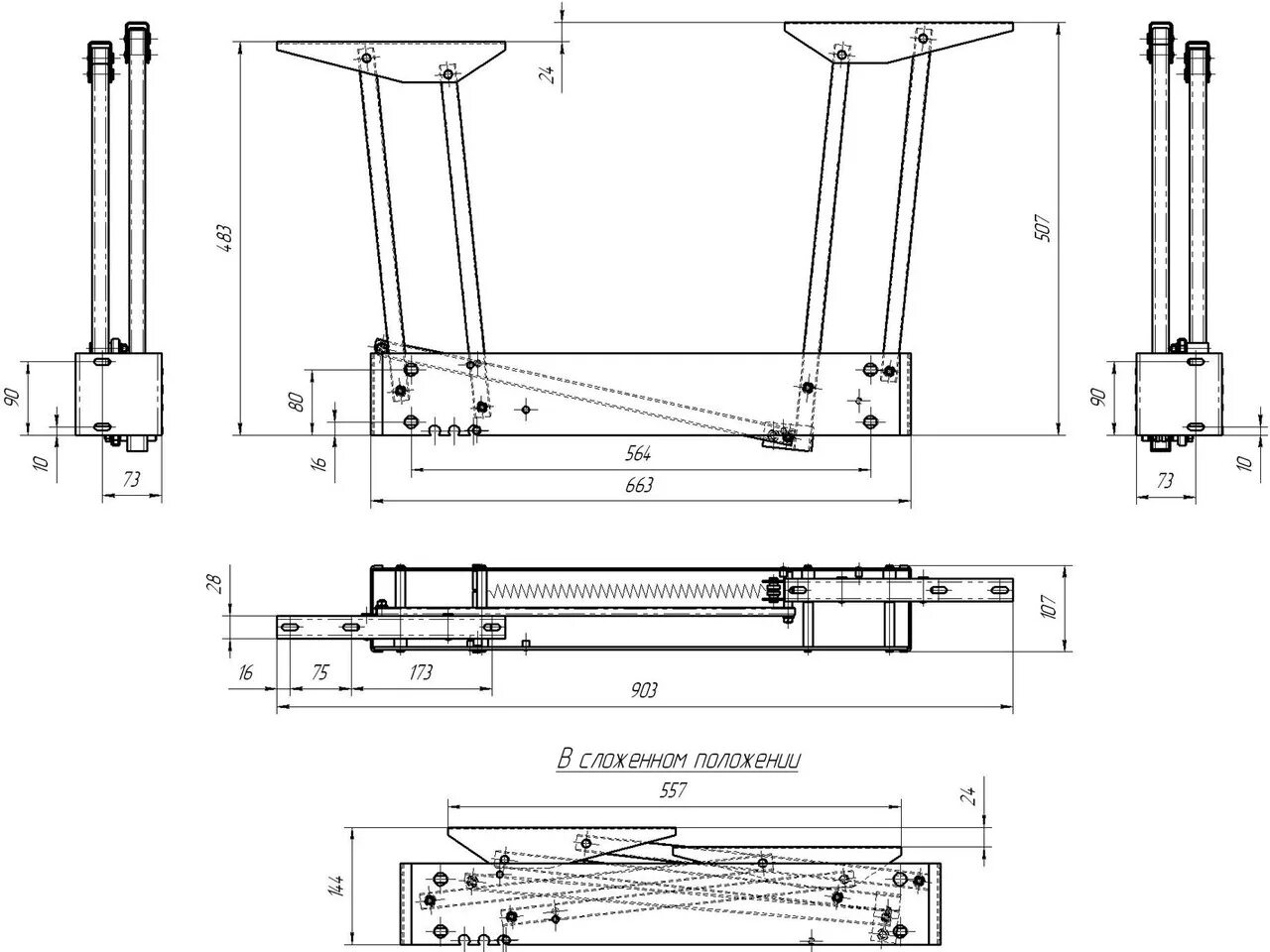
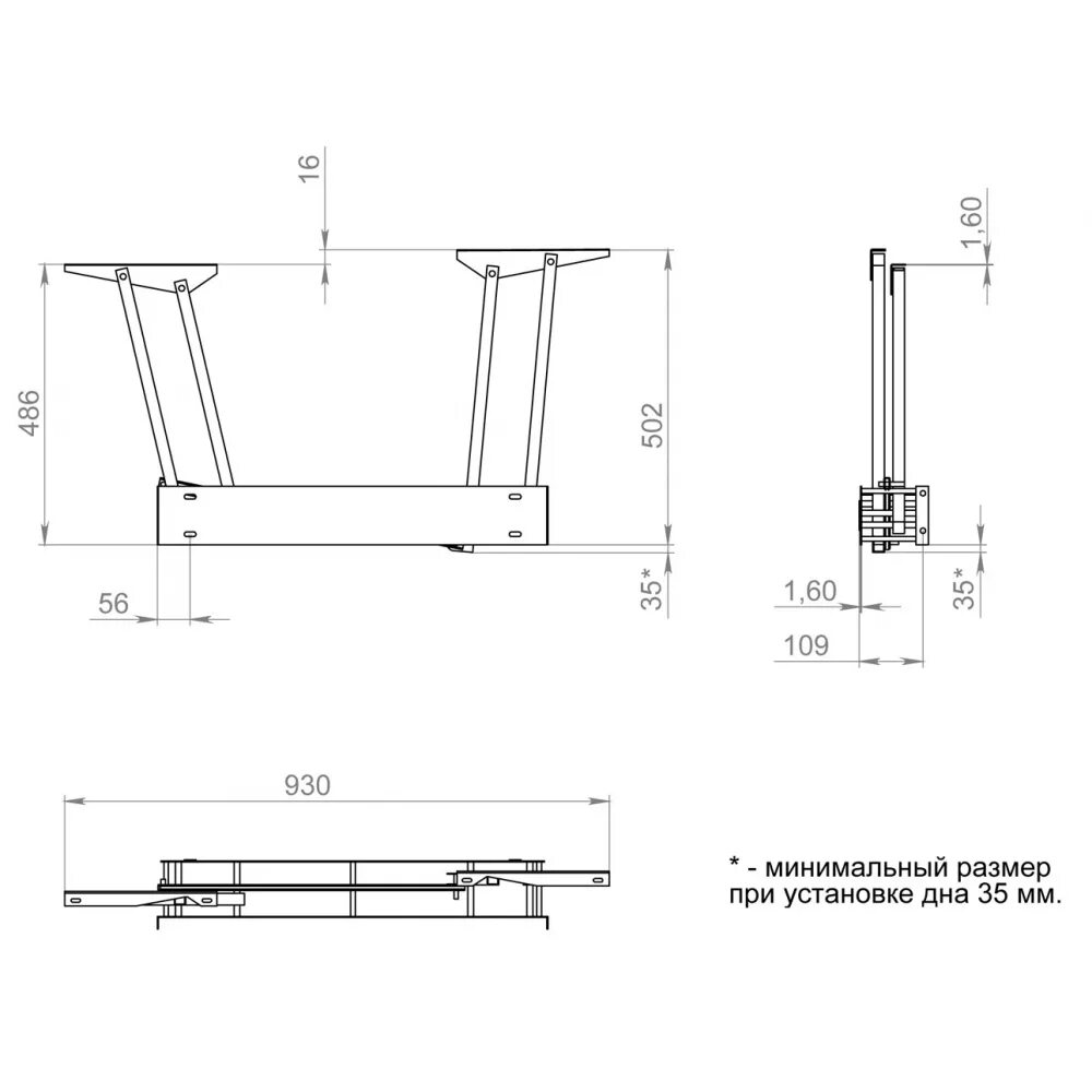
Трансформации столов