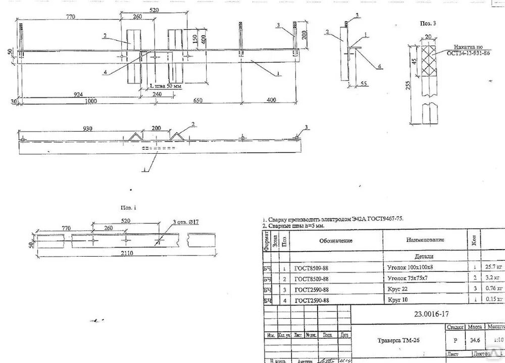
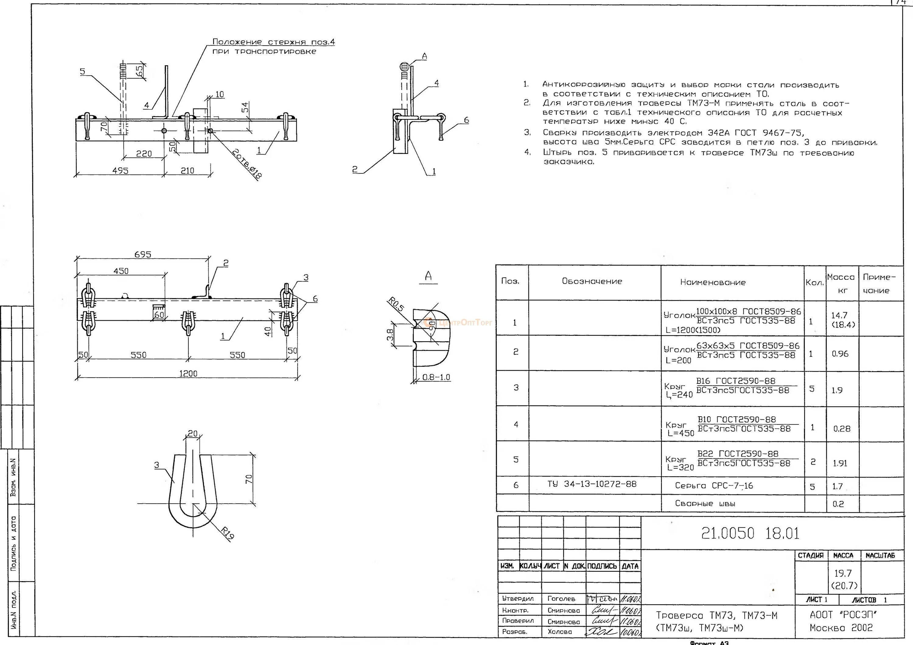
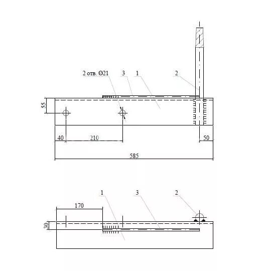
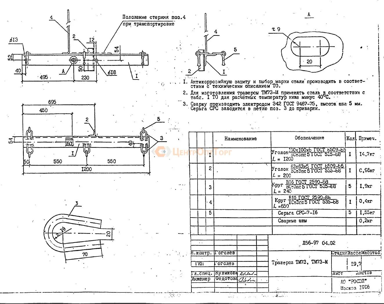
Траверса тм 73