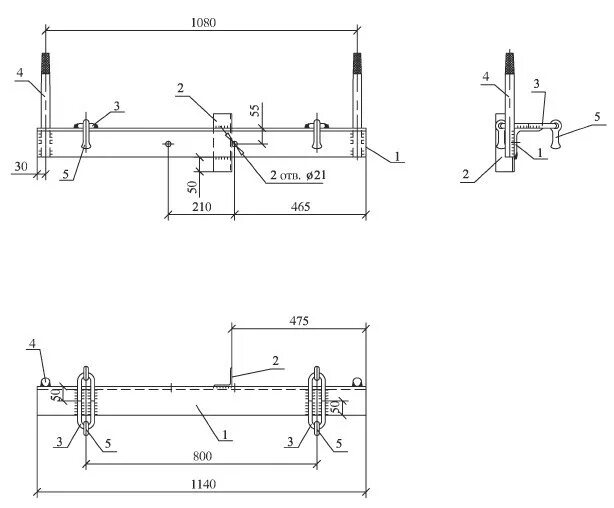
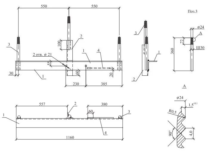
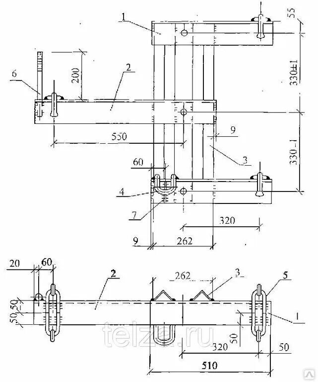
Траверса тм6