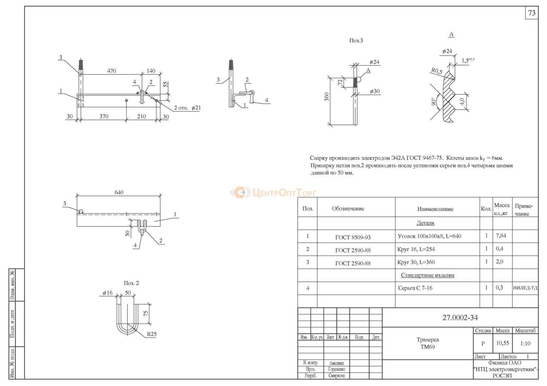
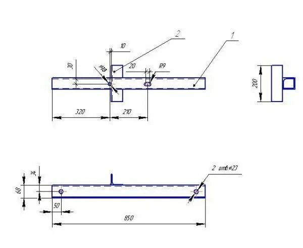
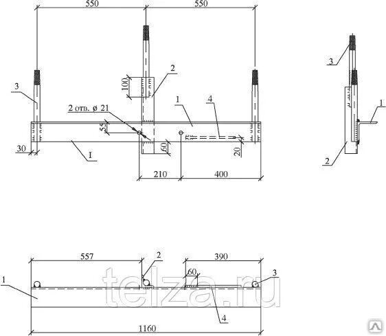
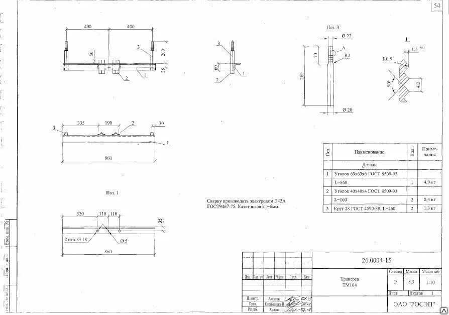
Траверса тм63