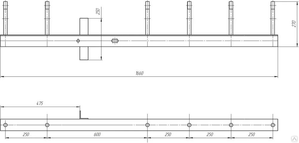
Траверсы тм 4