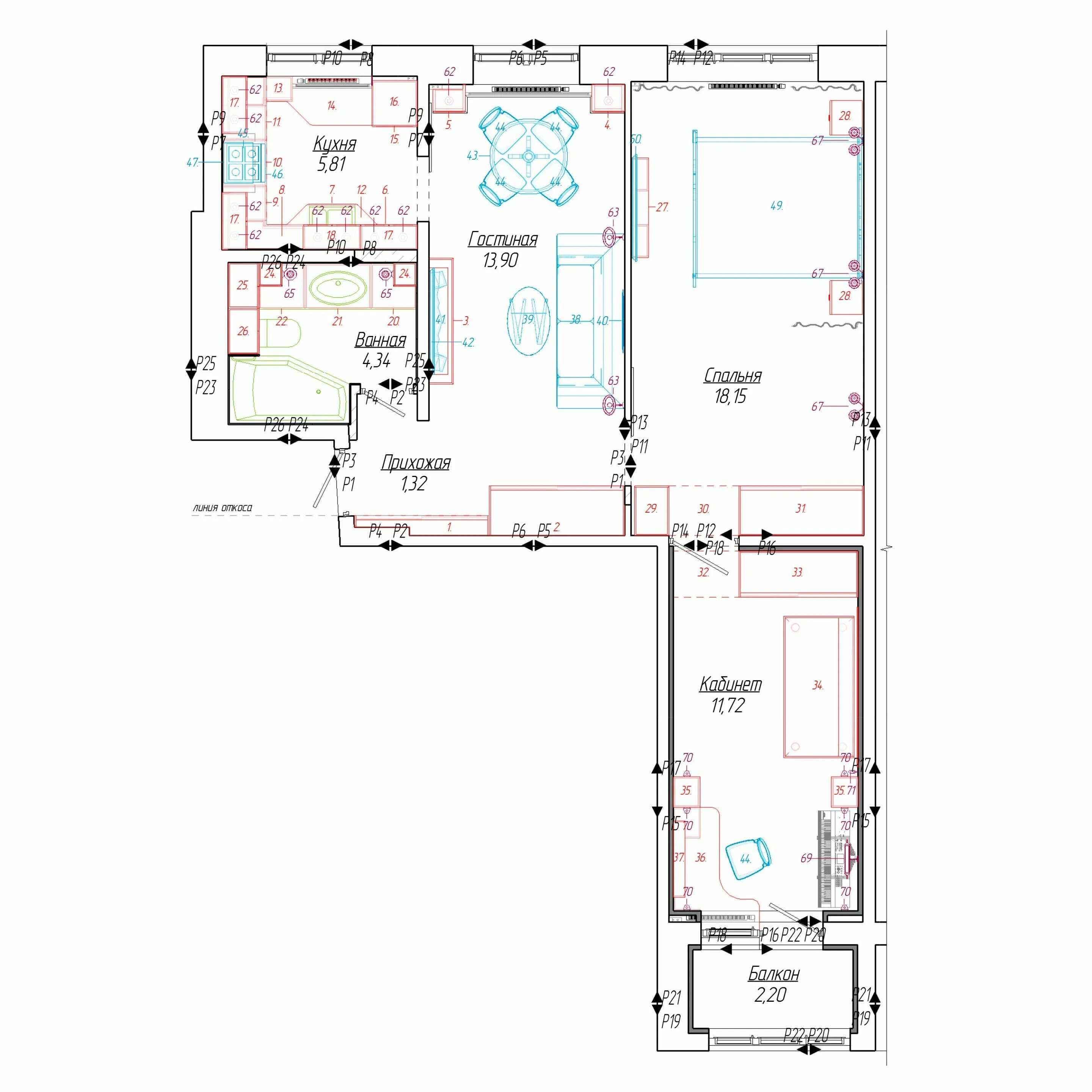
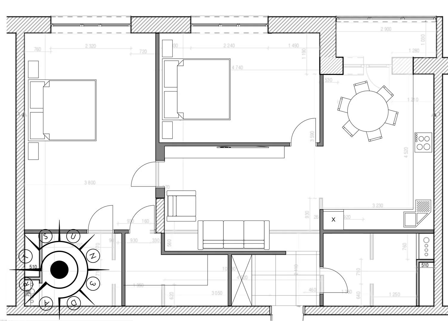
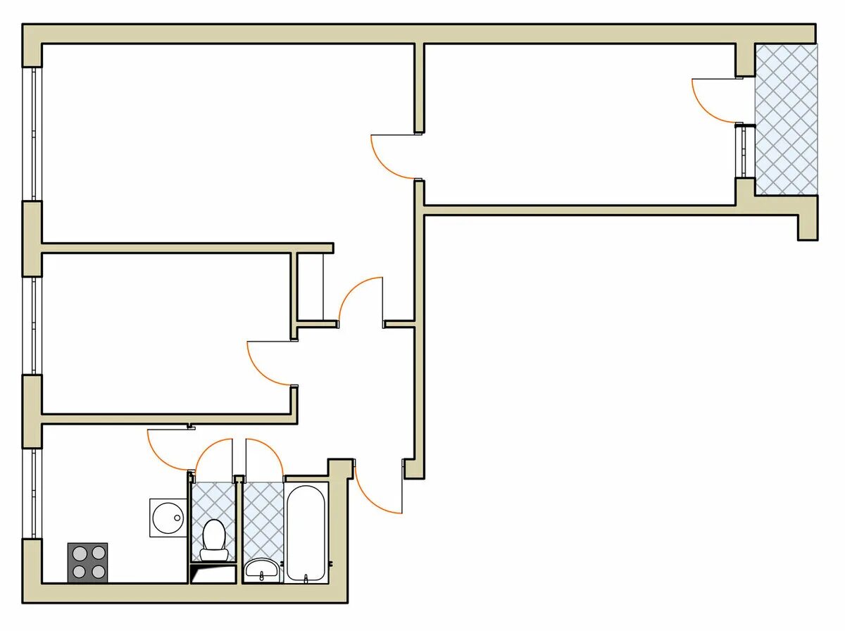
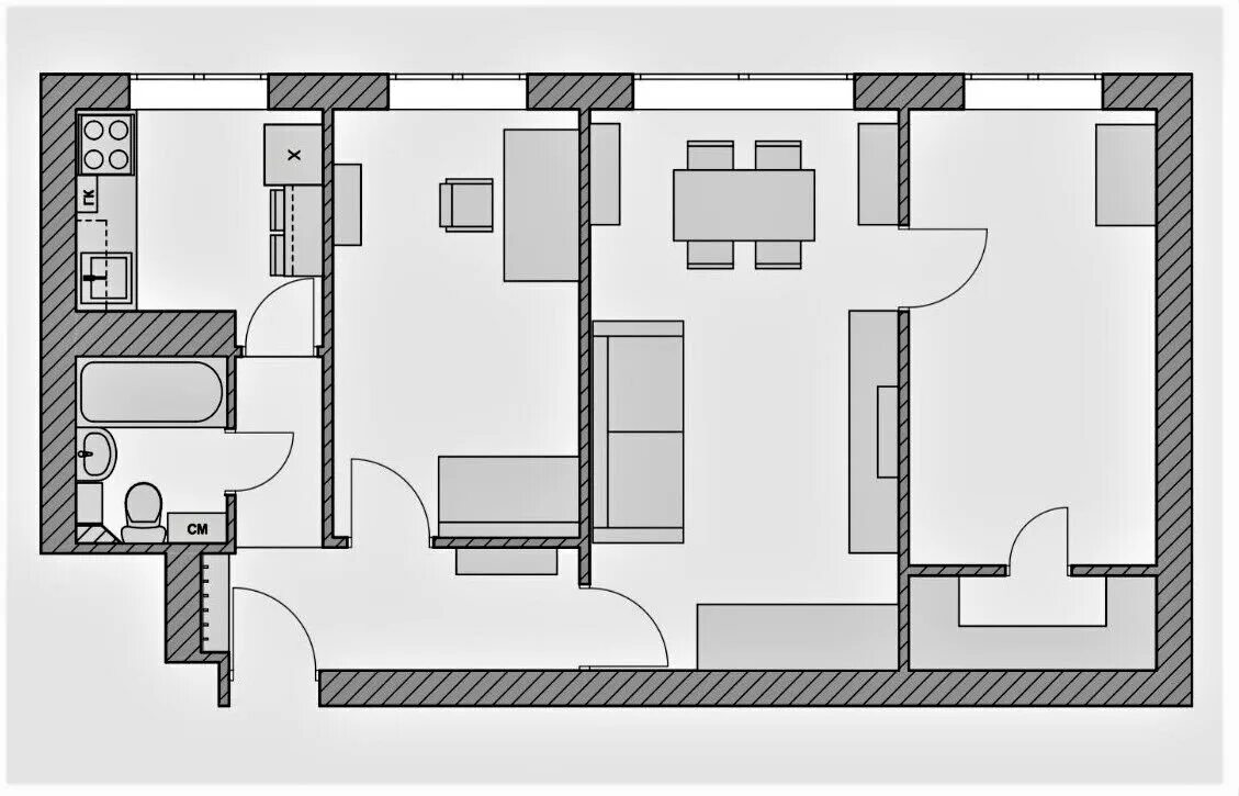
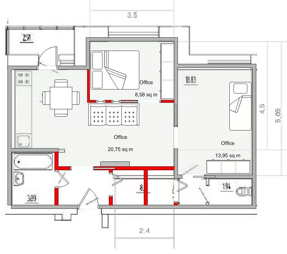
Трешка 60