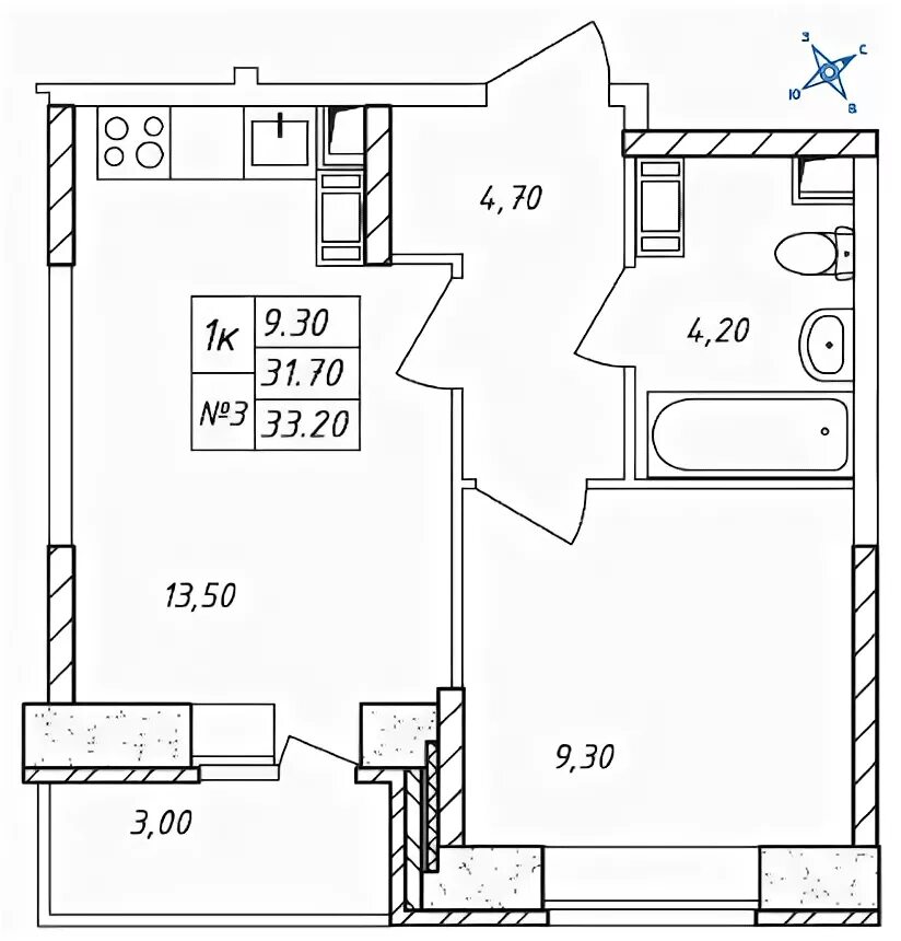
Циан жк самолет