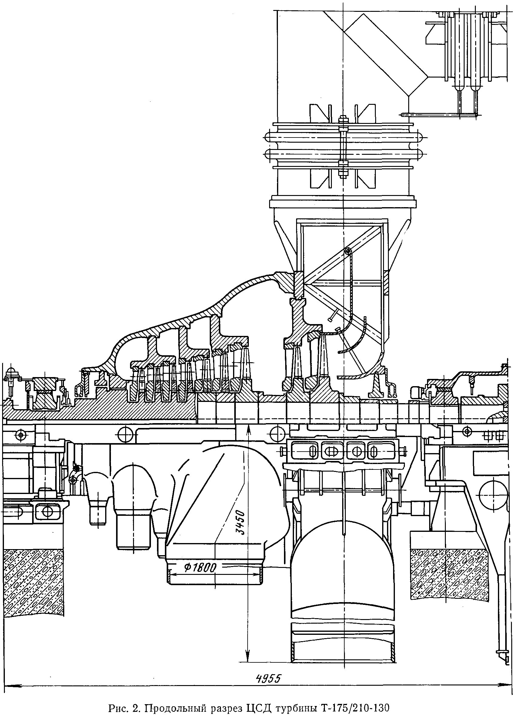
Турбина типа р