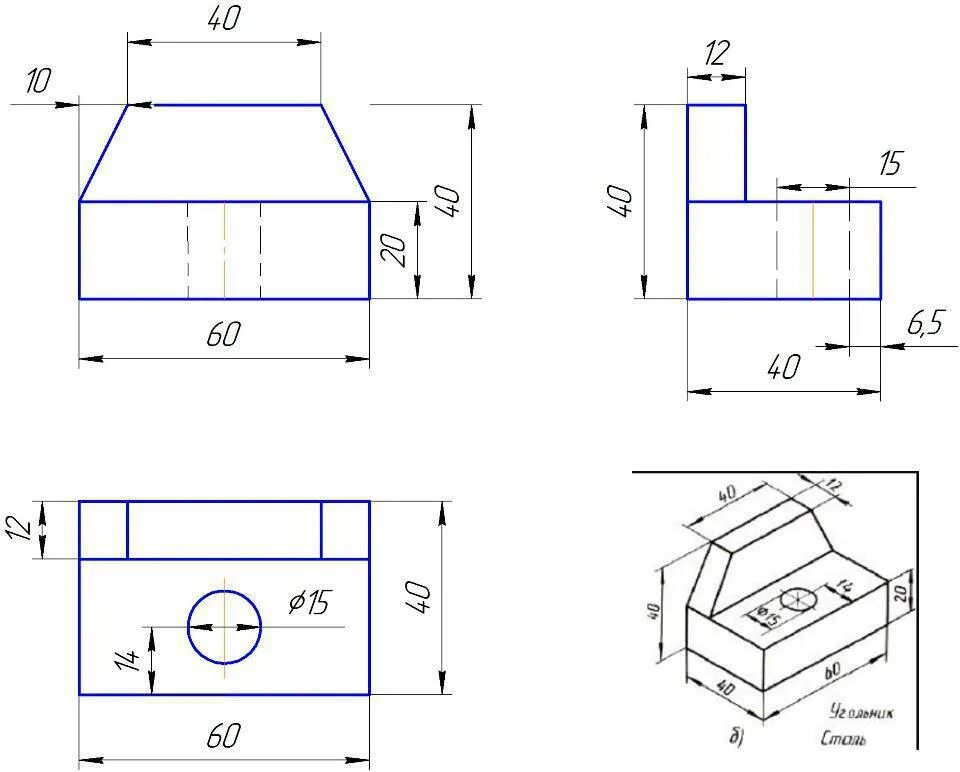
Угольник 8 класс