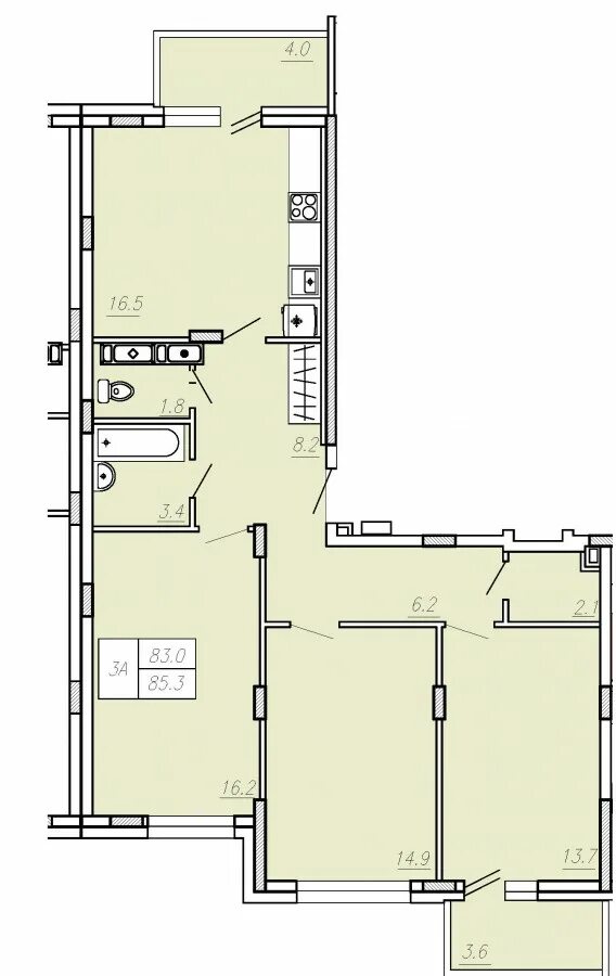
Ул строителей 1а