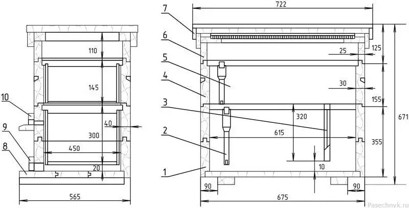
Улей дадана корпус