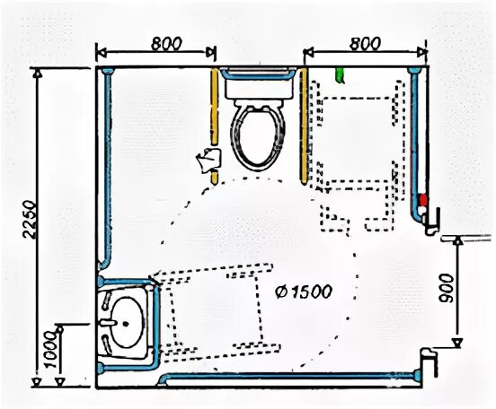
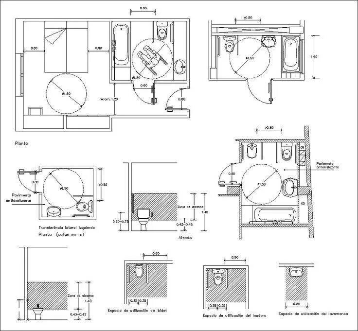
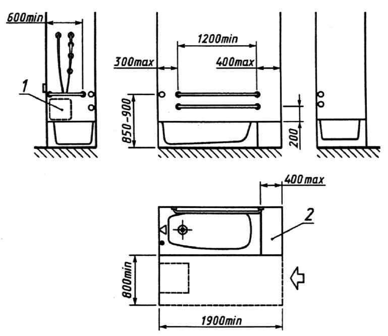
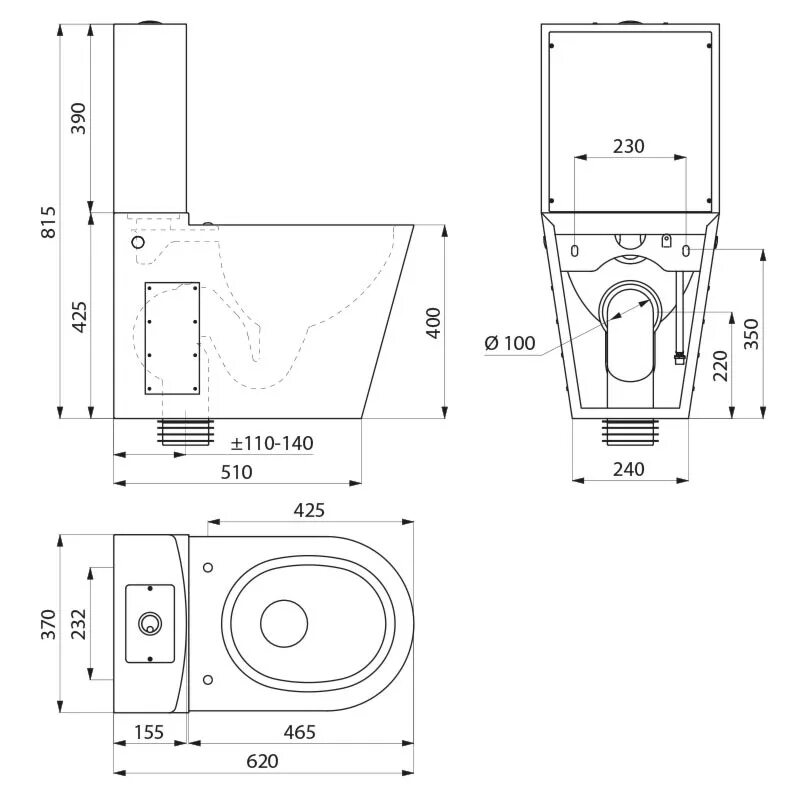
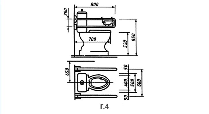
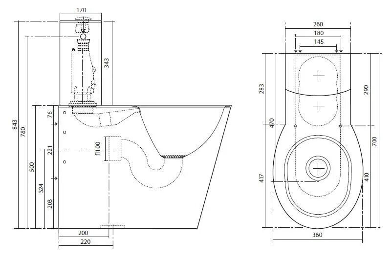
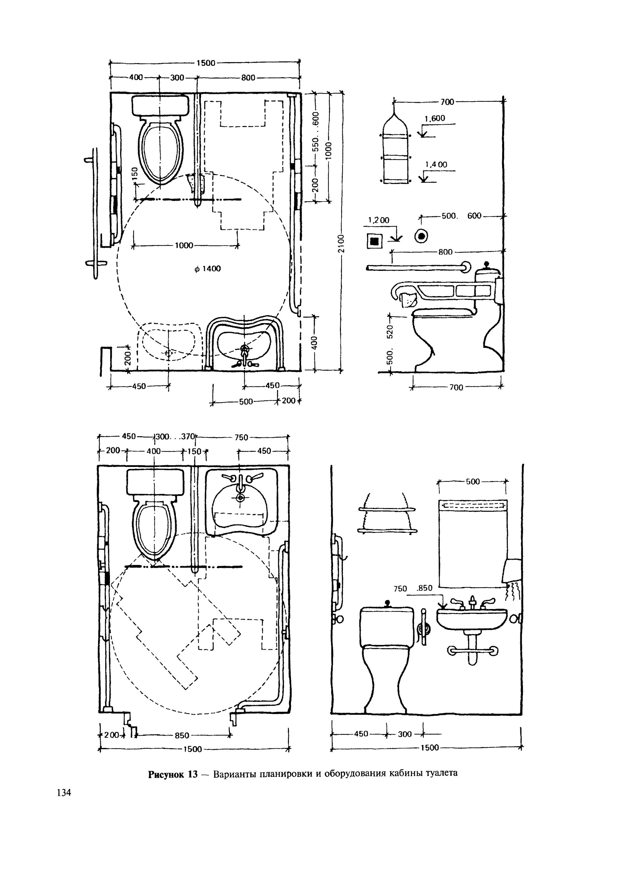
Унитаз для инвалидов размеры