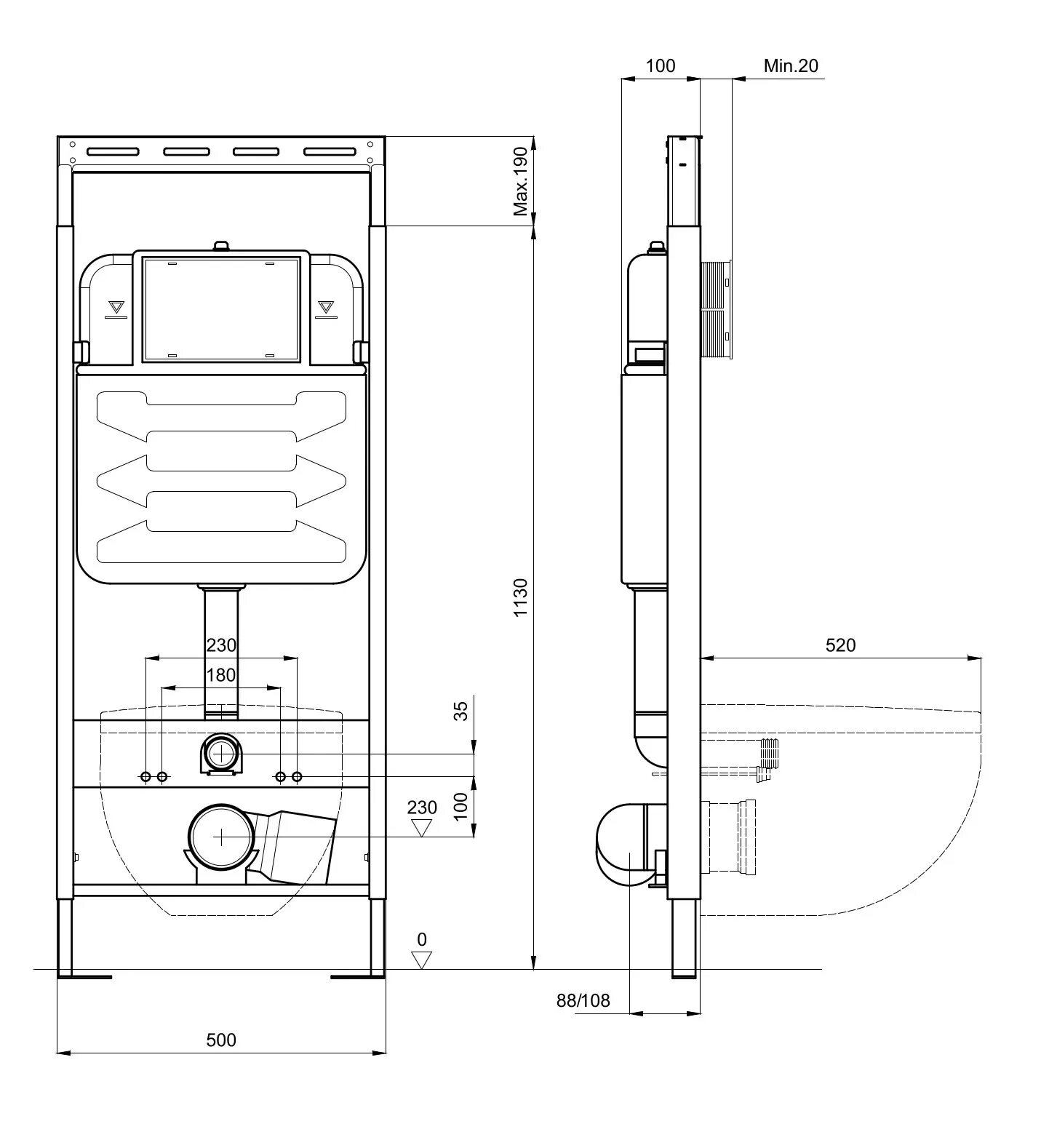
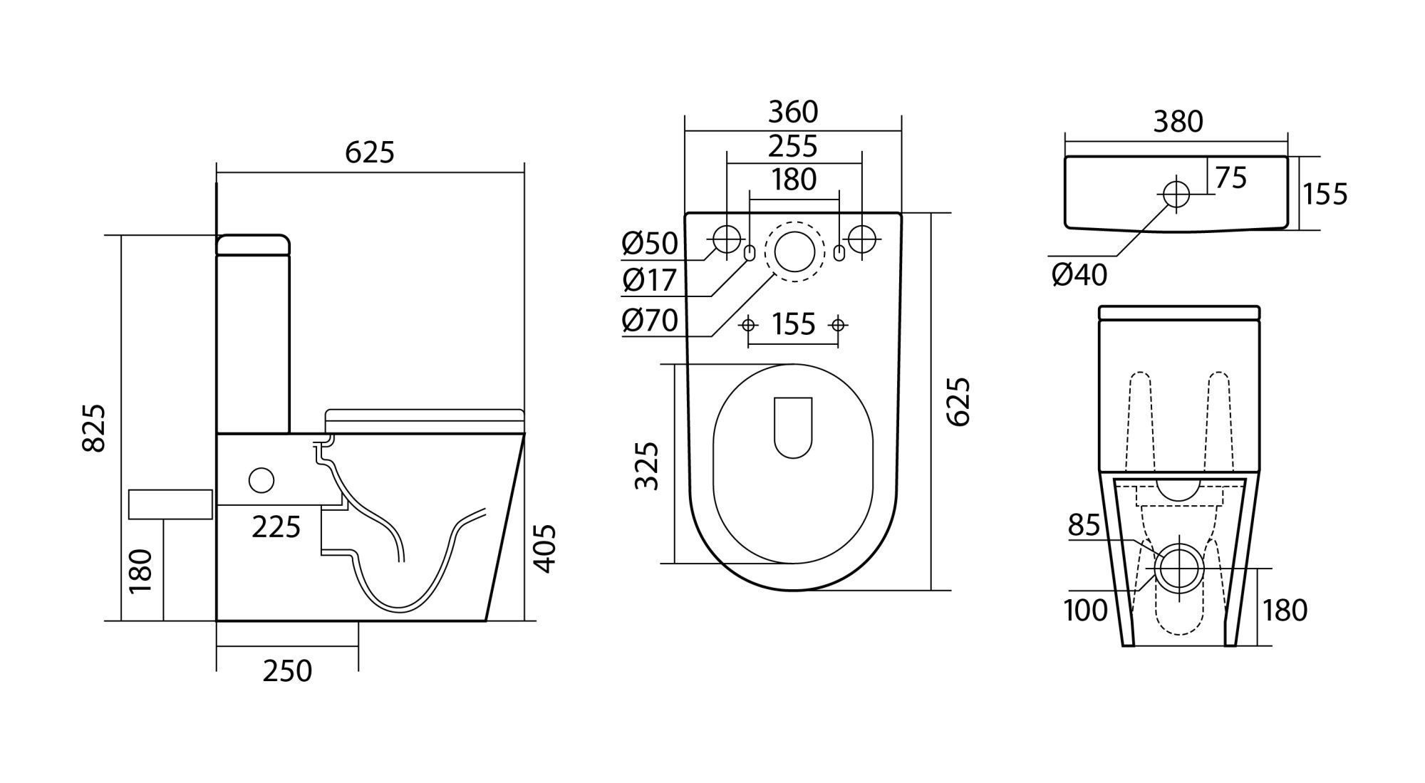
Унитазы aquatek вега