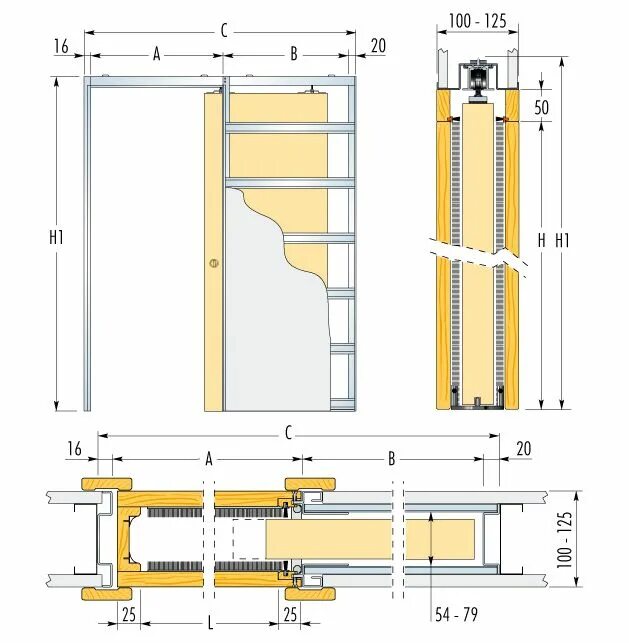
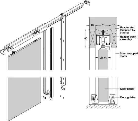
Установить раздвижную