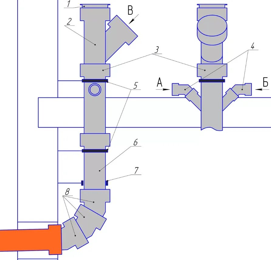
Установите канализации