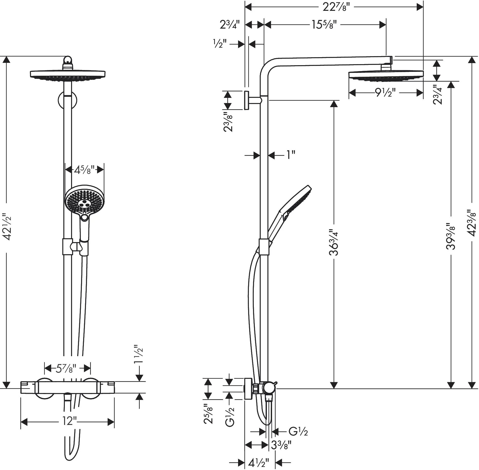
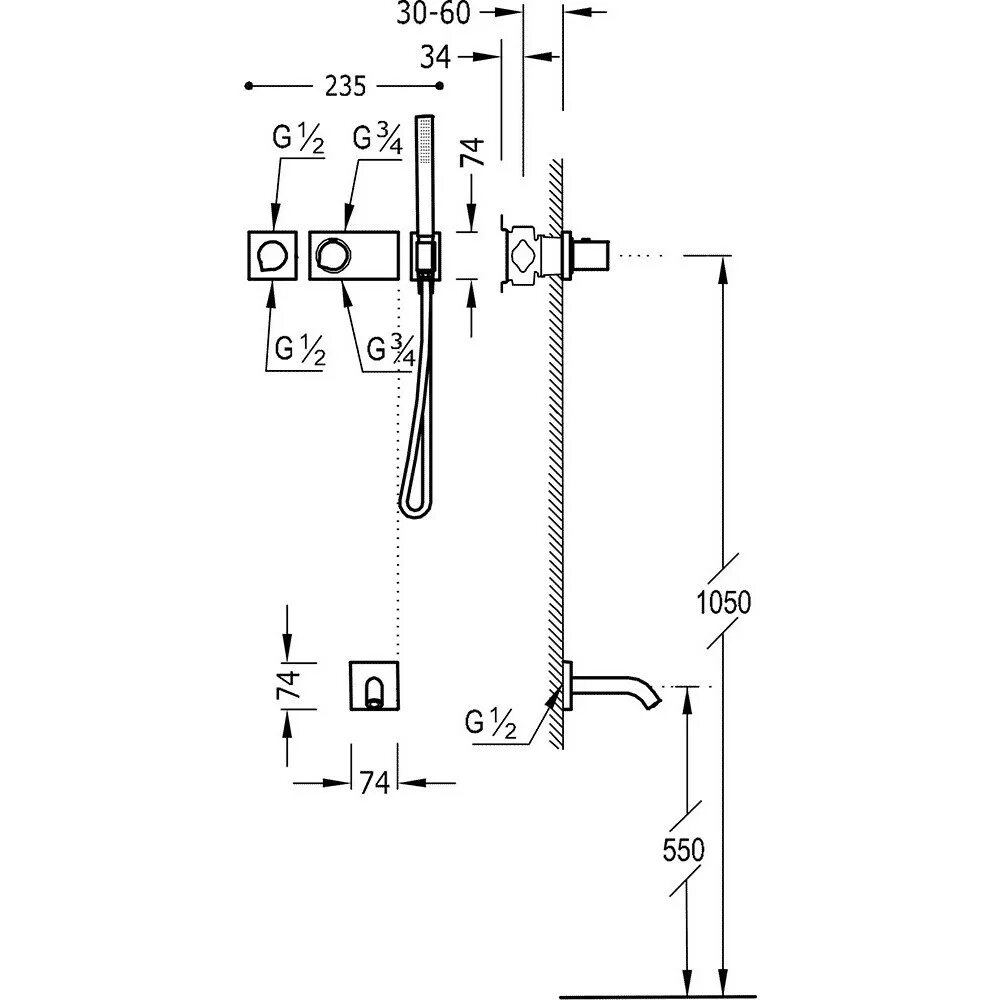
Установка душа