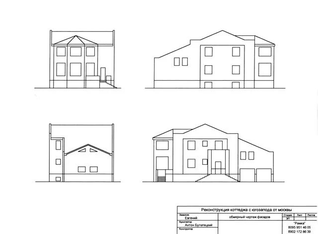
Утверждение эскизного проекта