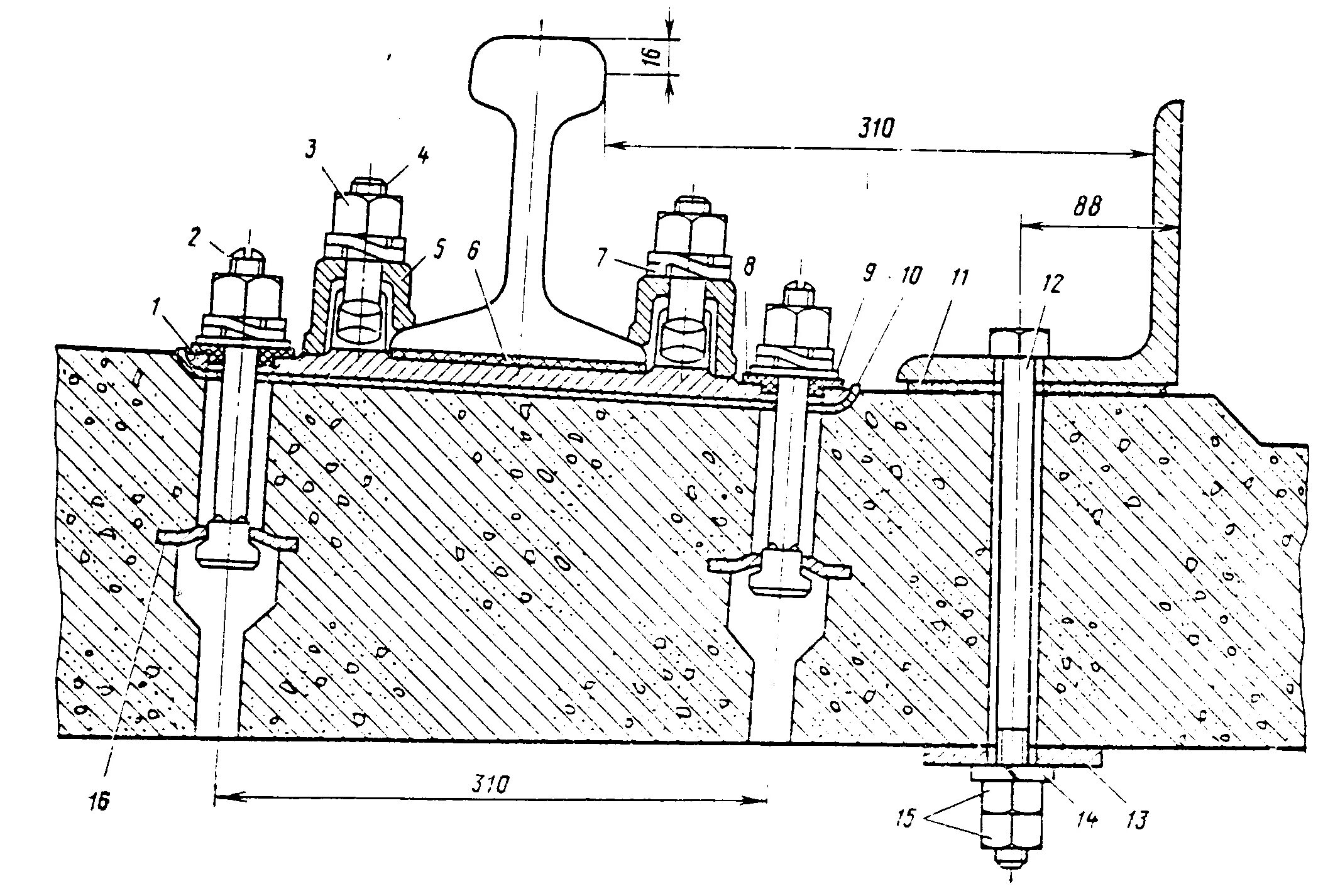
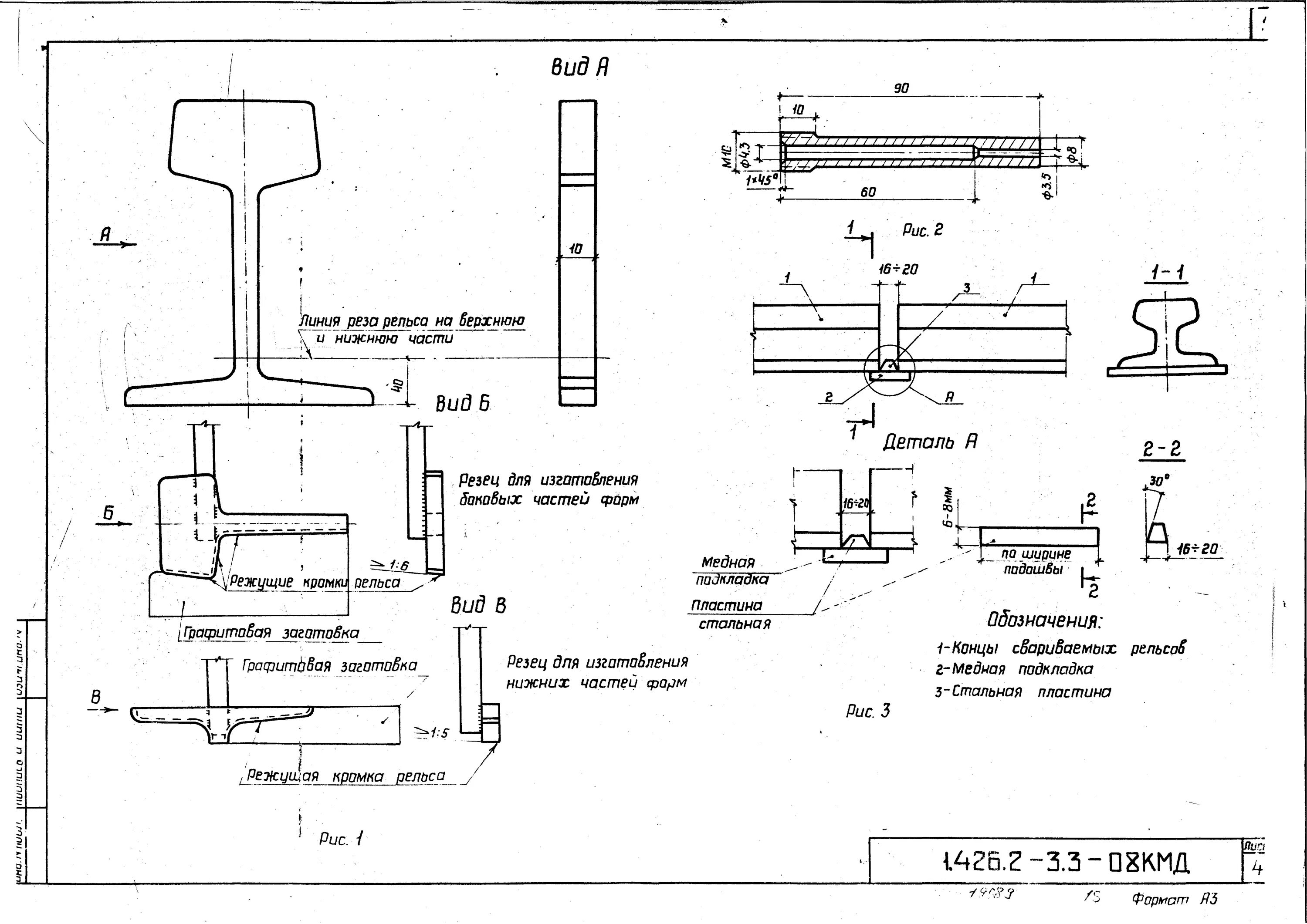
Узел крепления рельсов