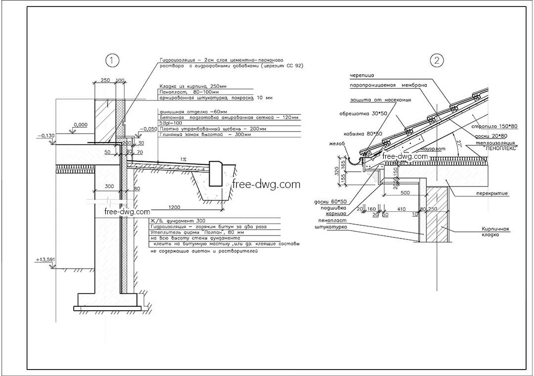
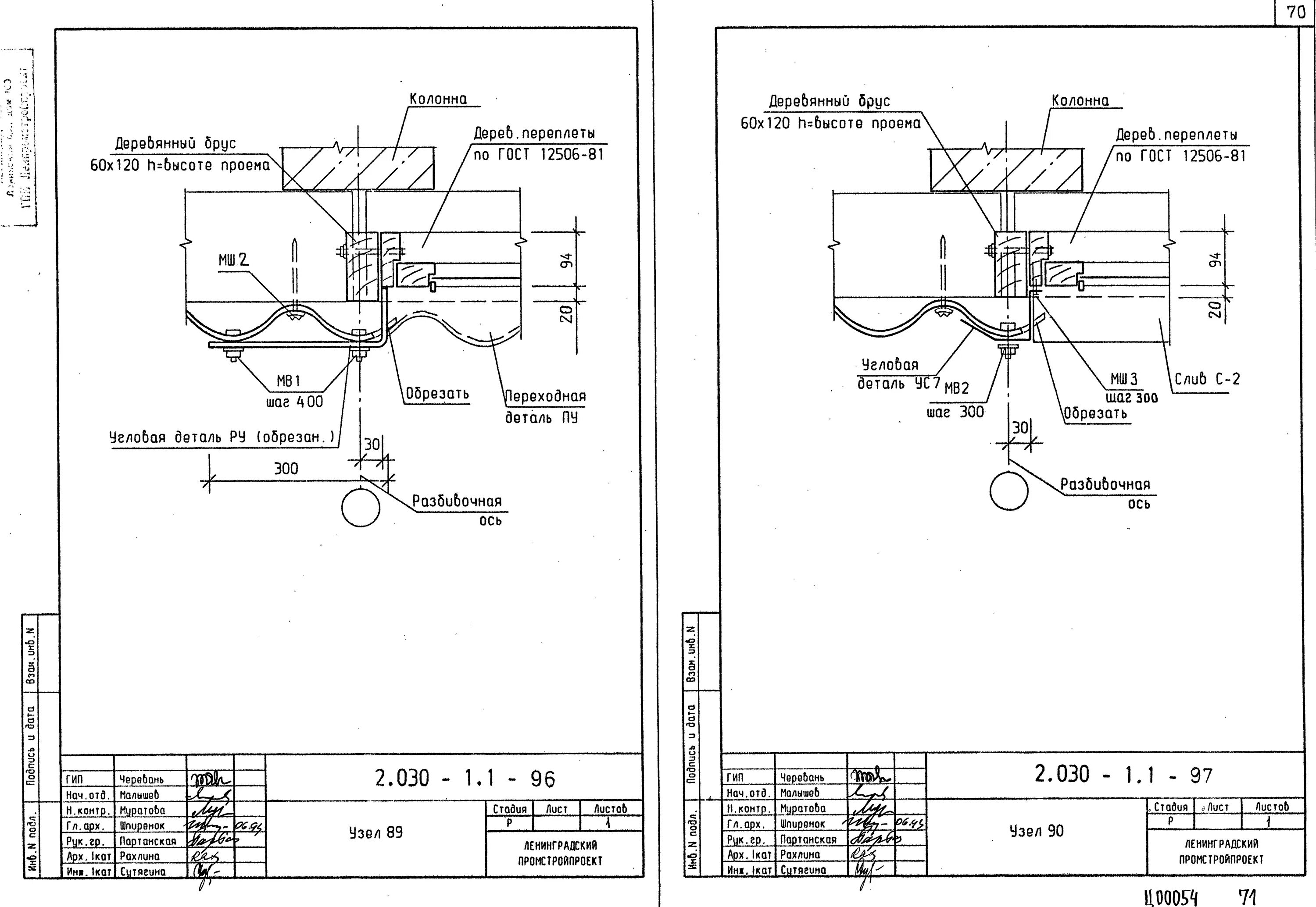
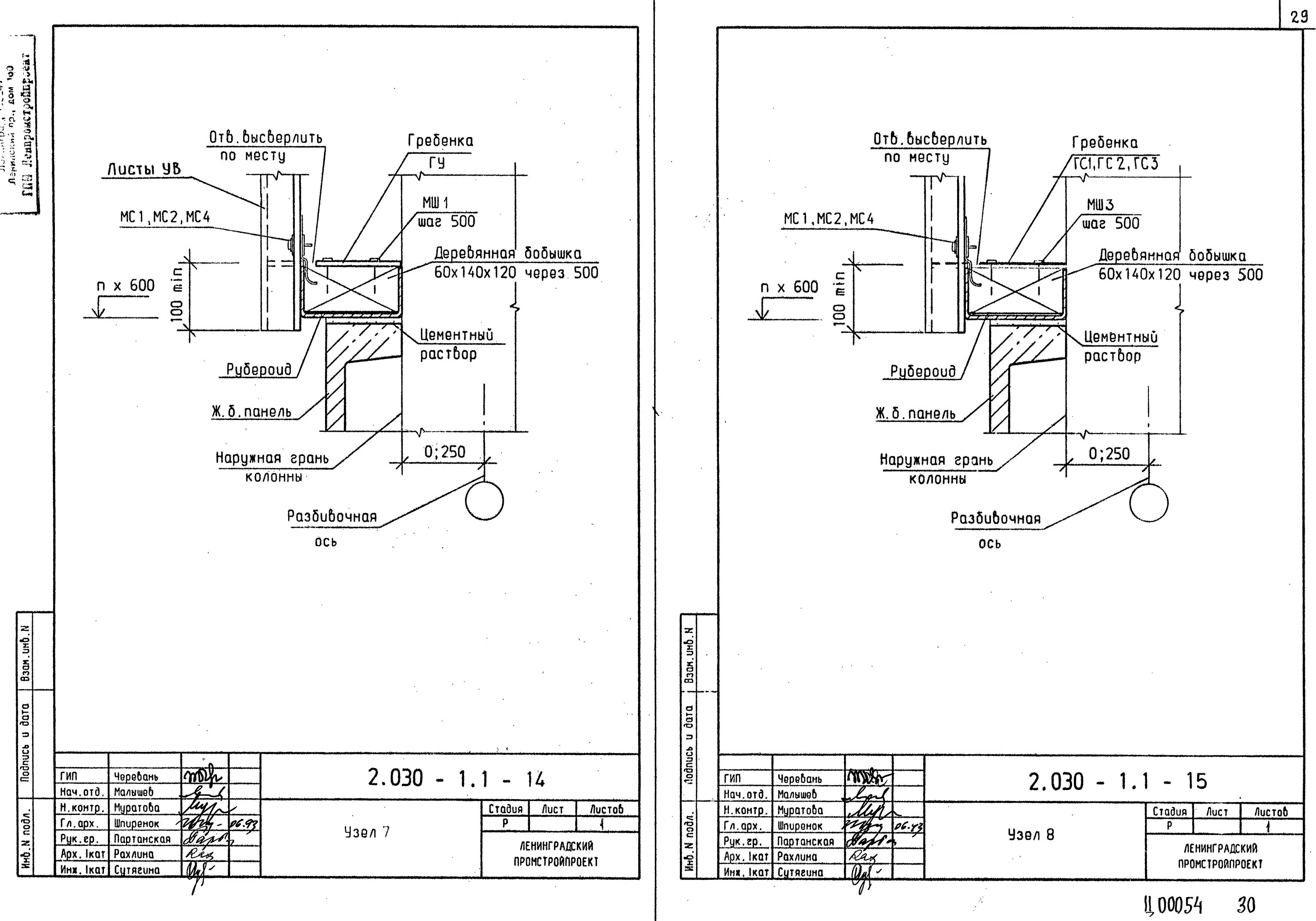
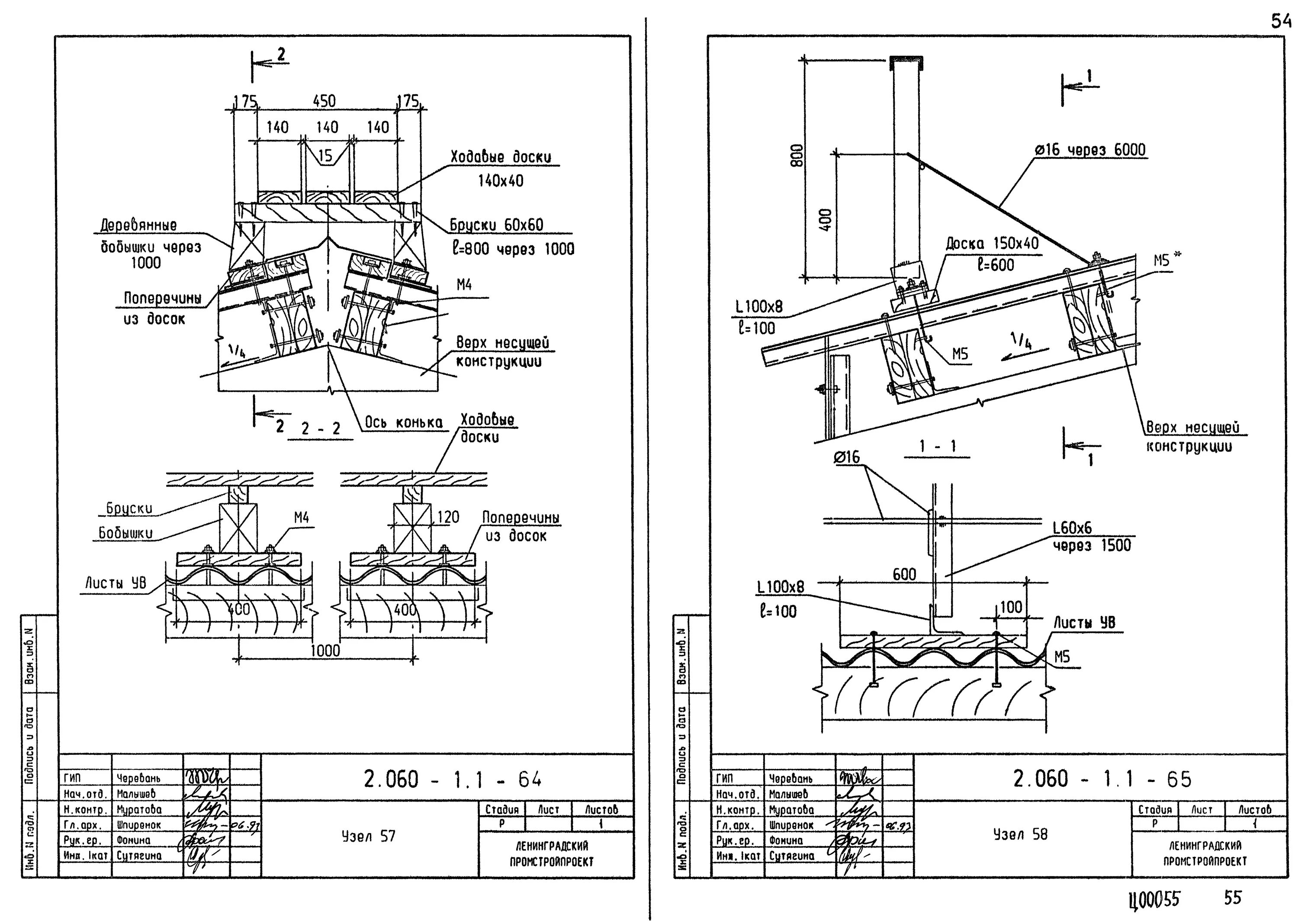
Узлы зданий dwg