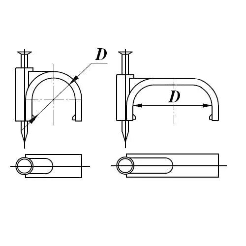
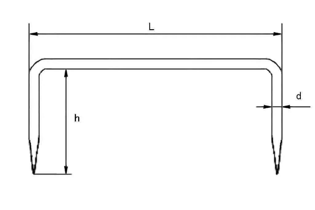
В каких целях используется скоба 08601