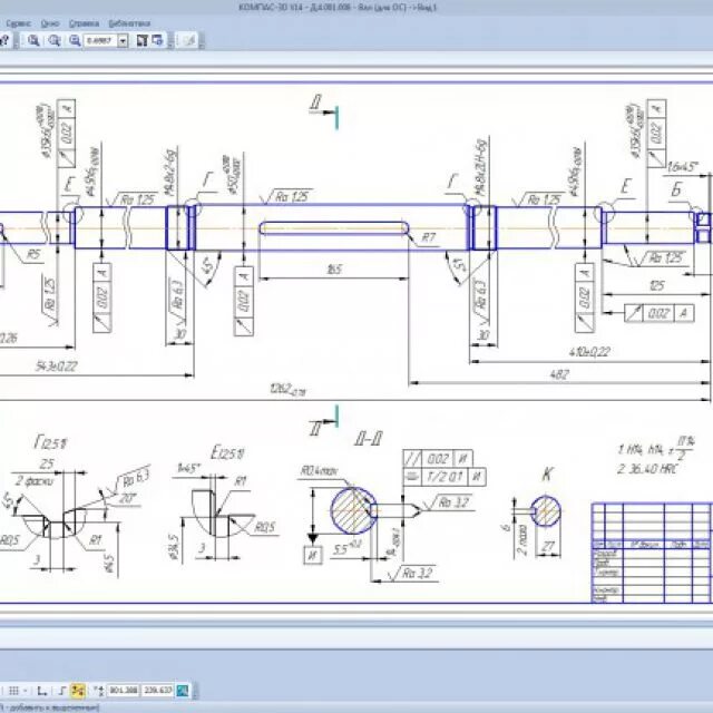
Вал д