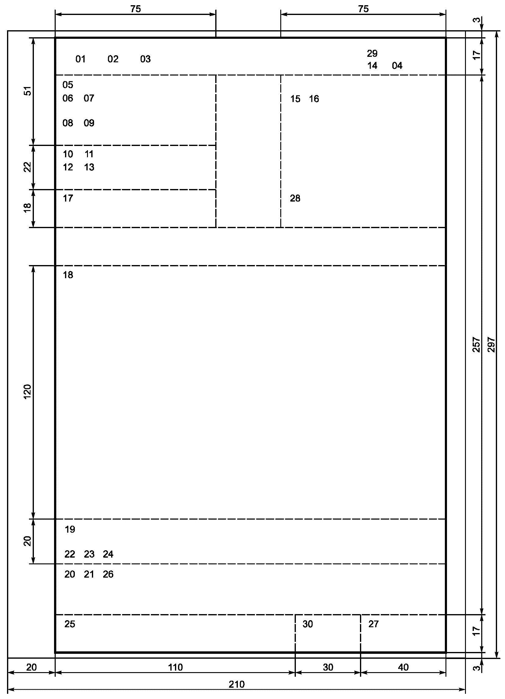
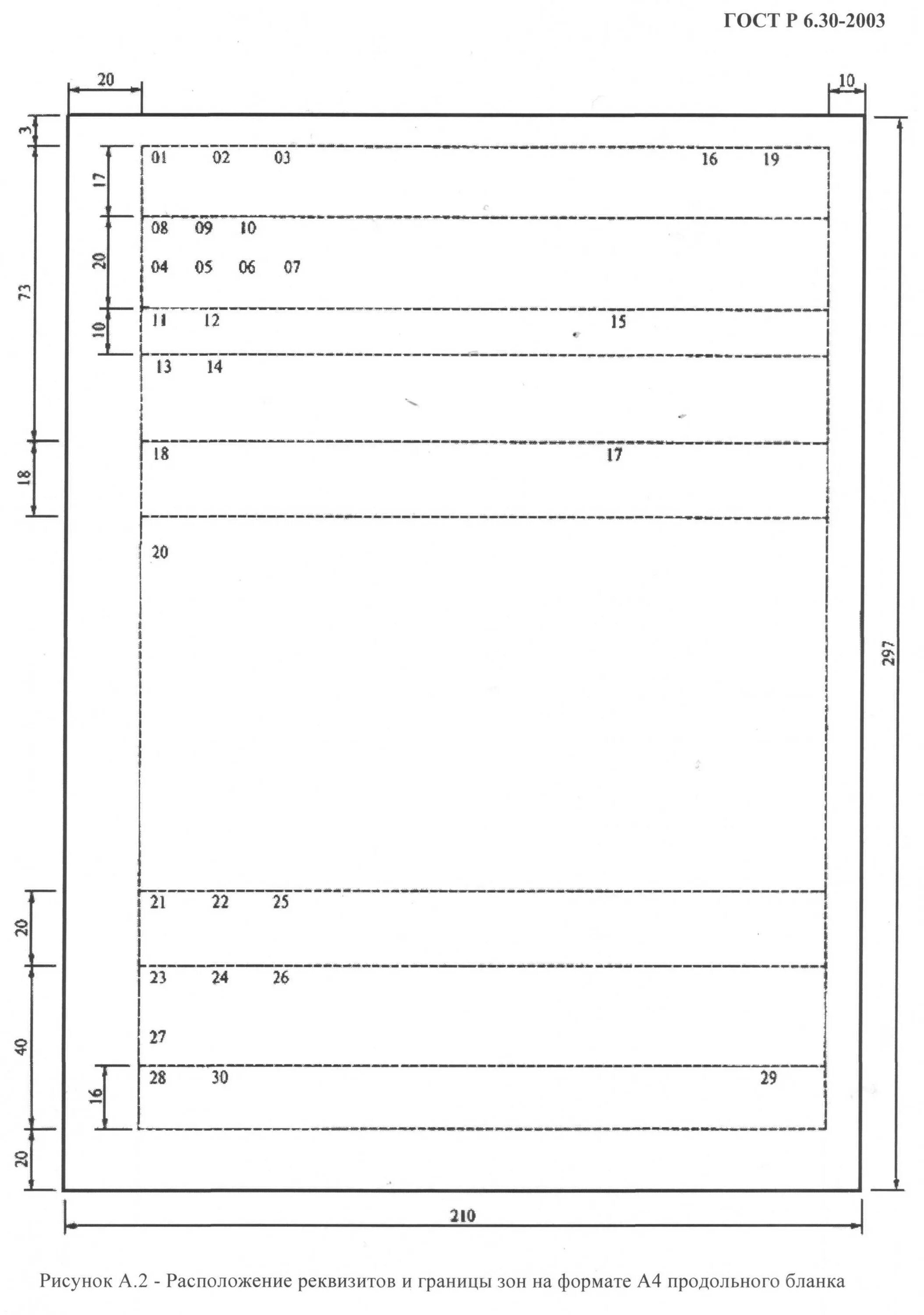
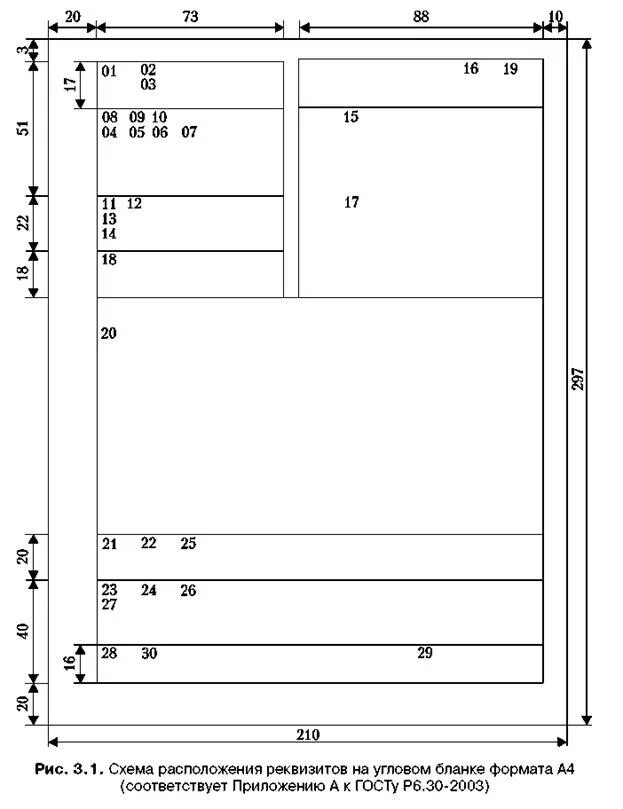
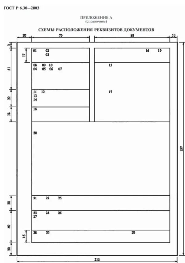
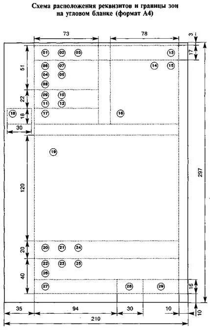
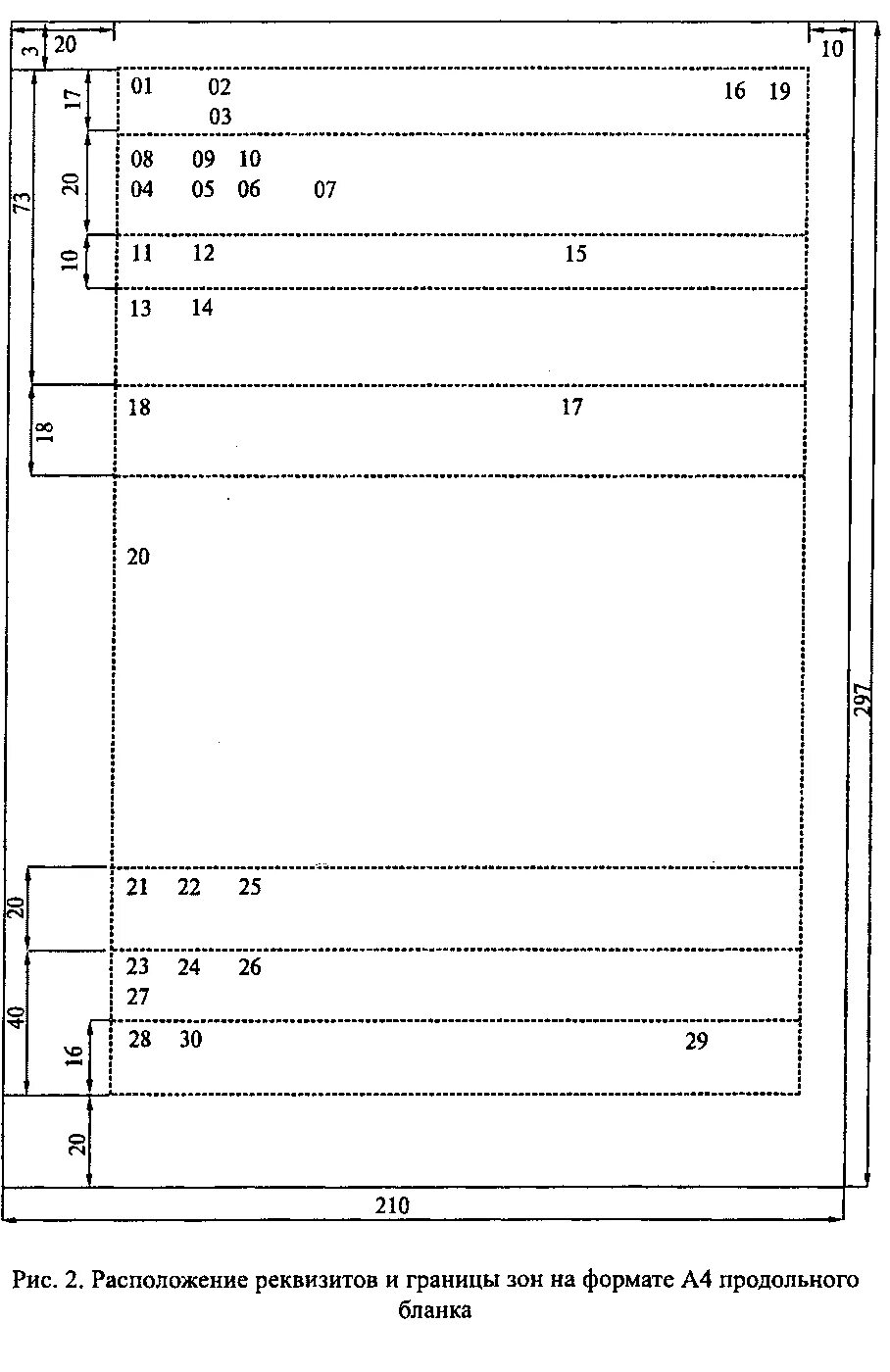
Варианты расположения бланков