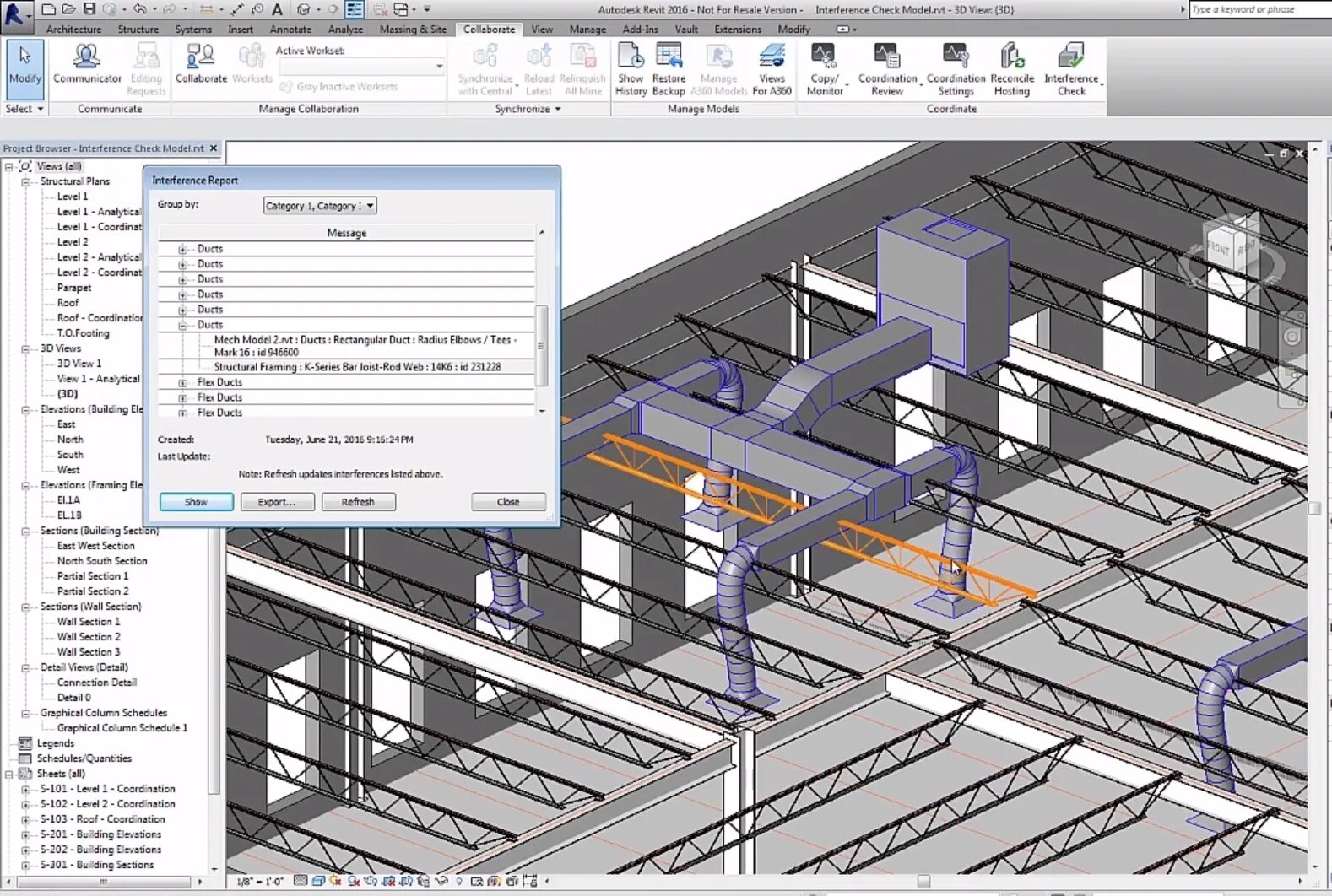
View analysis