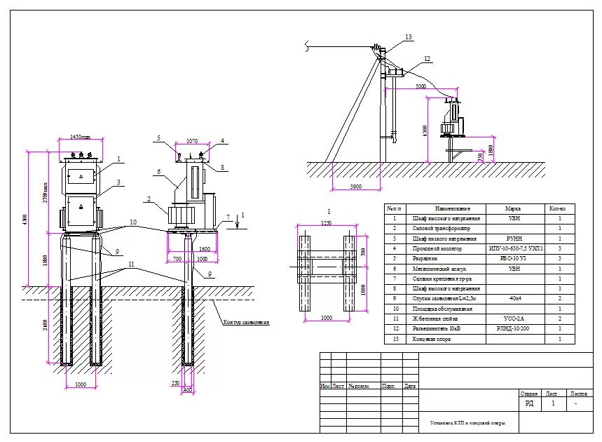
Временный тп