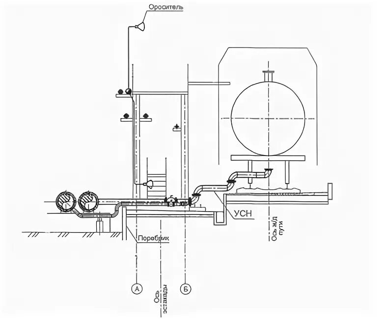
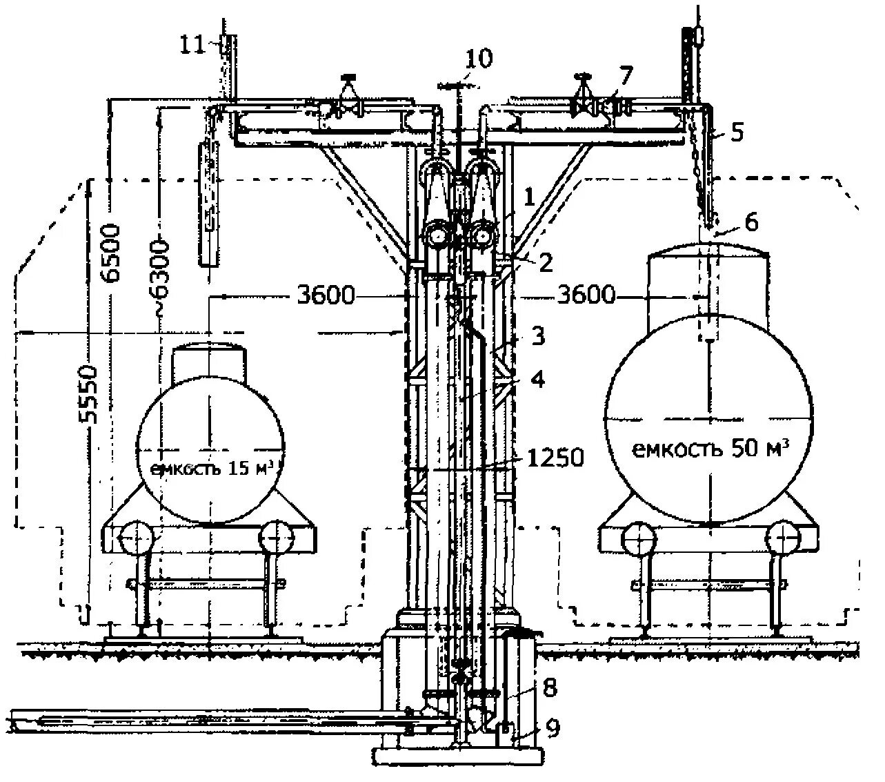
Время слива из железнодорожных цистерн