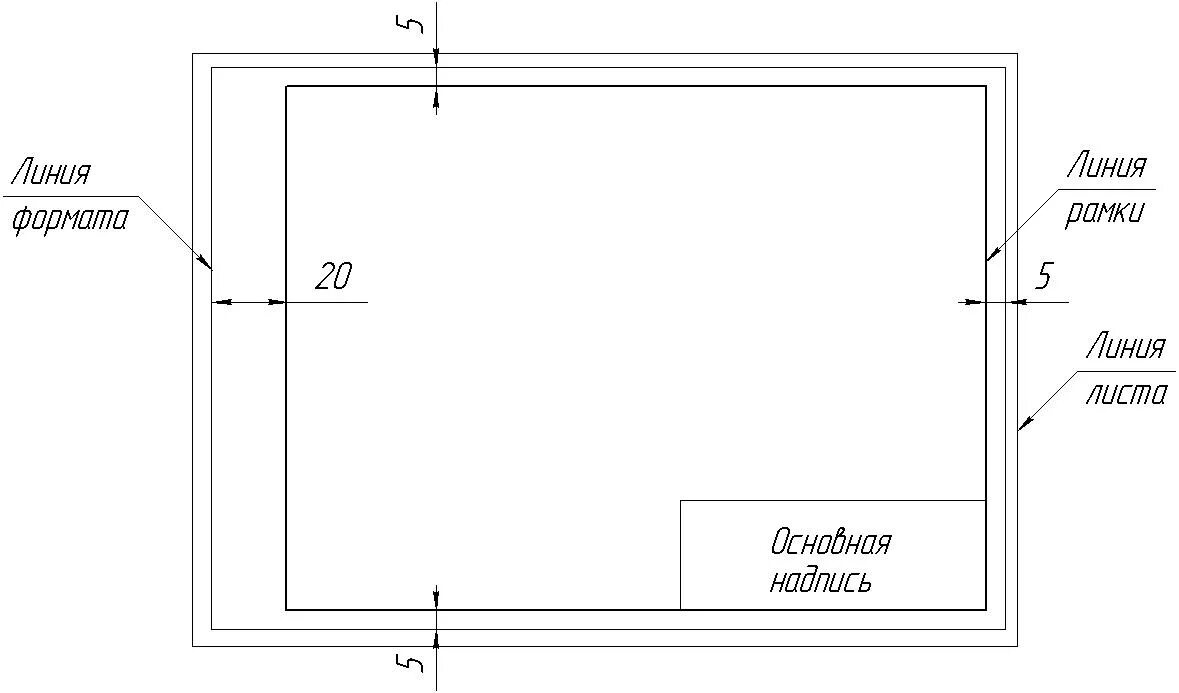
Выполнить чертеж на формате а4