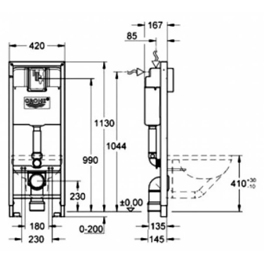
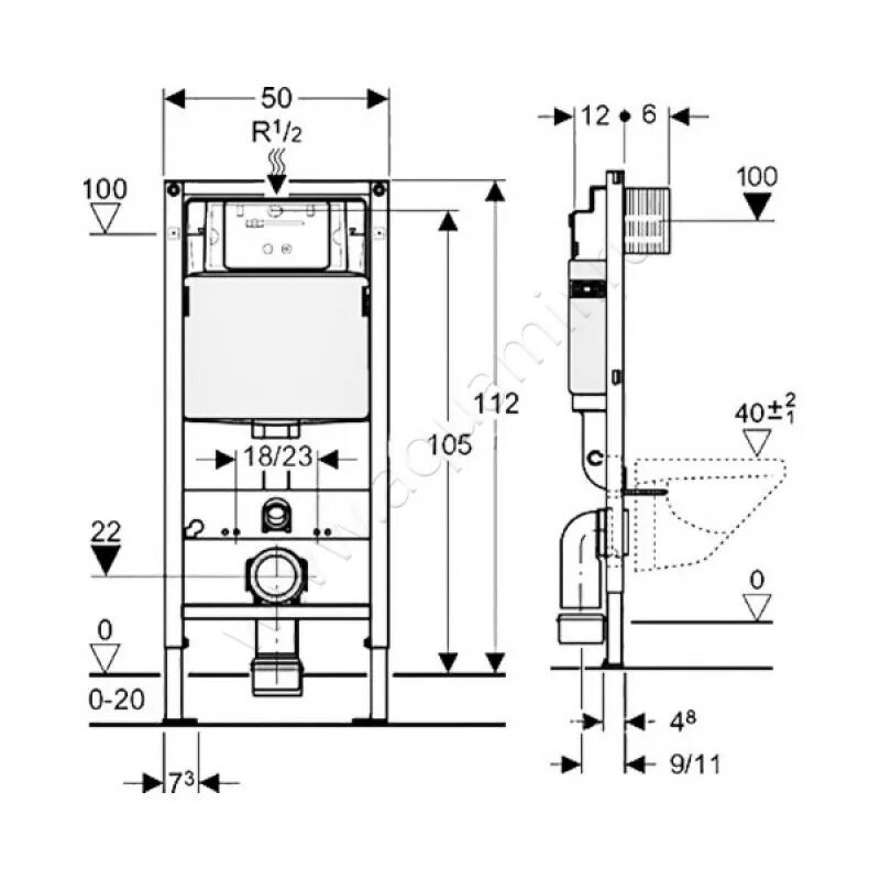
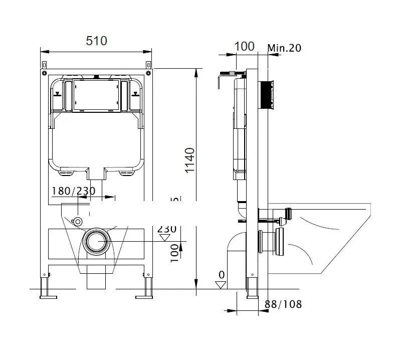
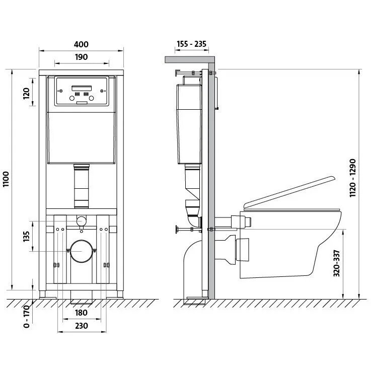
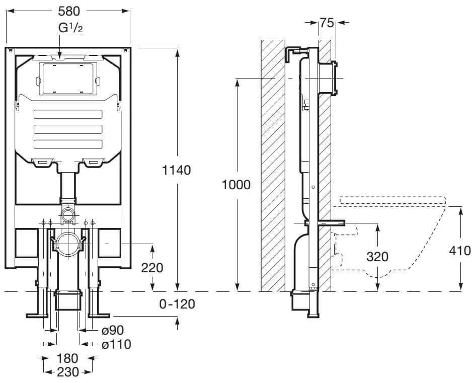
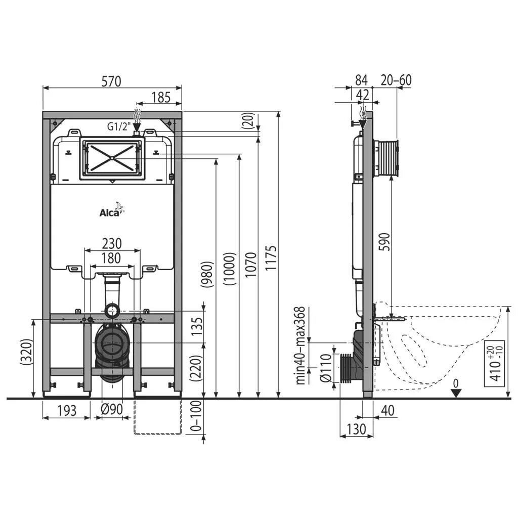
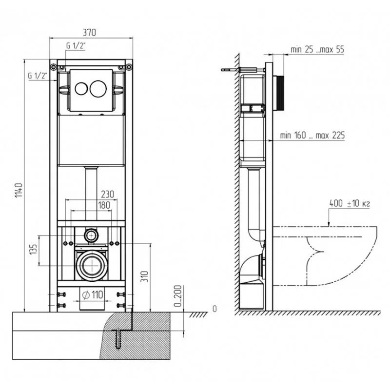
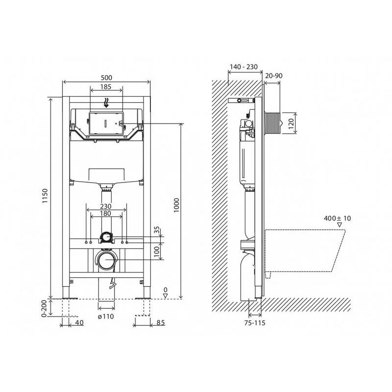
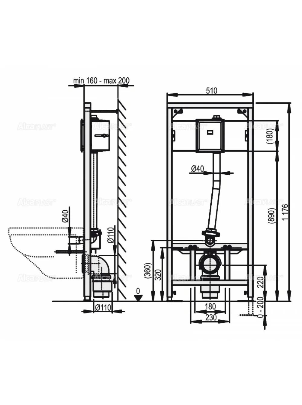
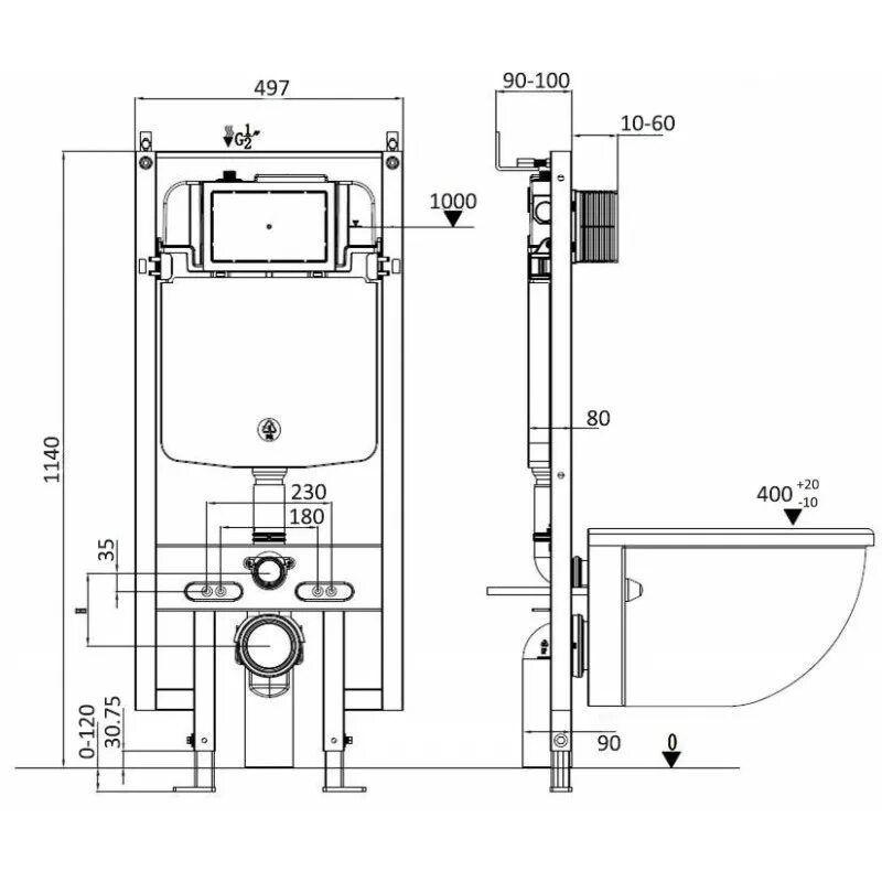
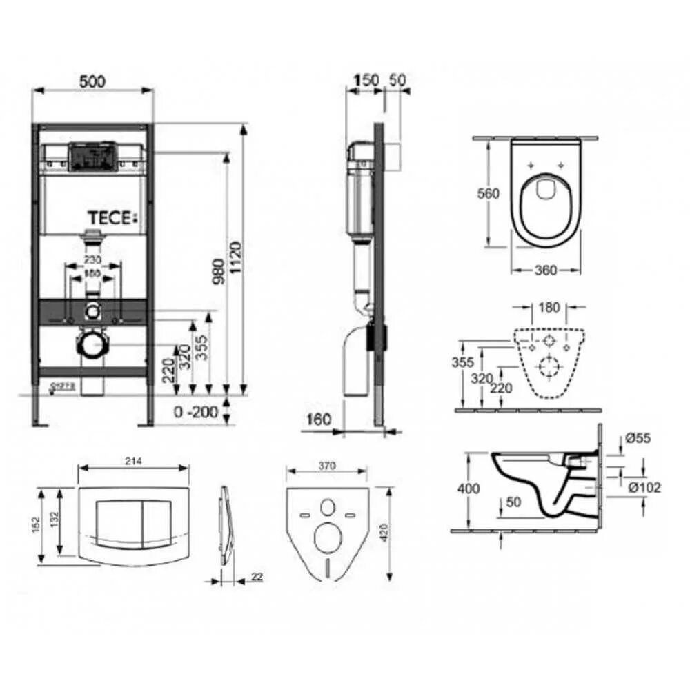
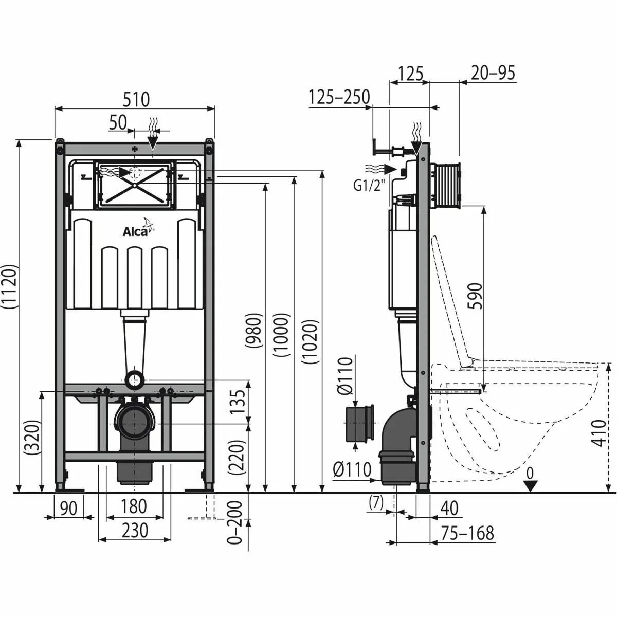
Высота унитаза инсталляции