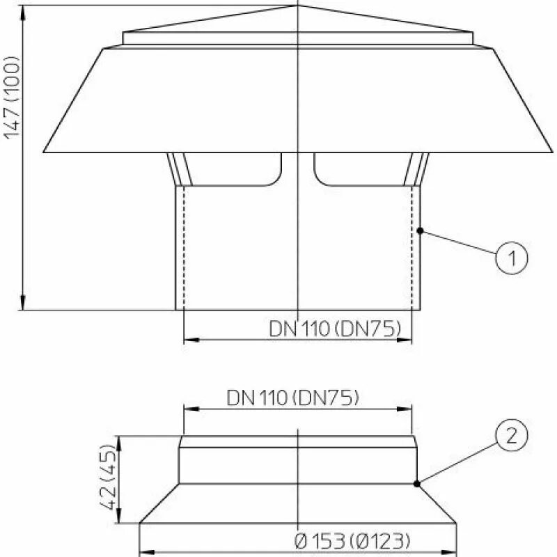
Вытяжные зонты размеры