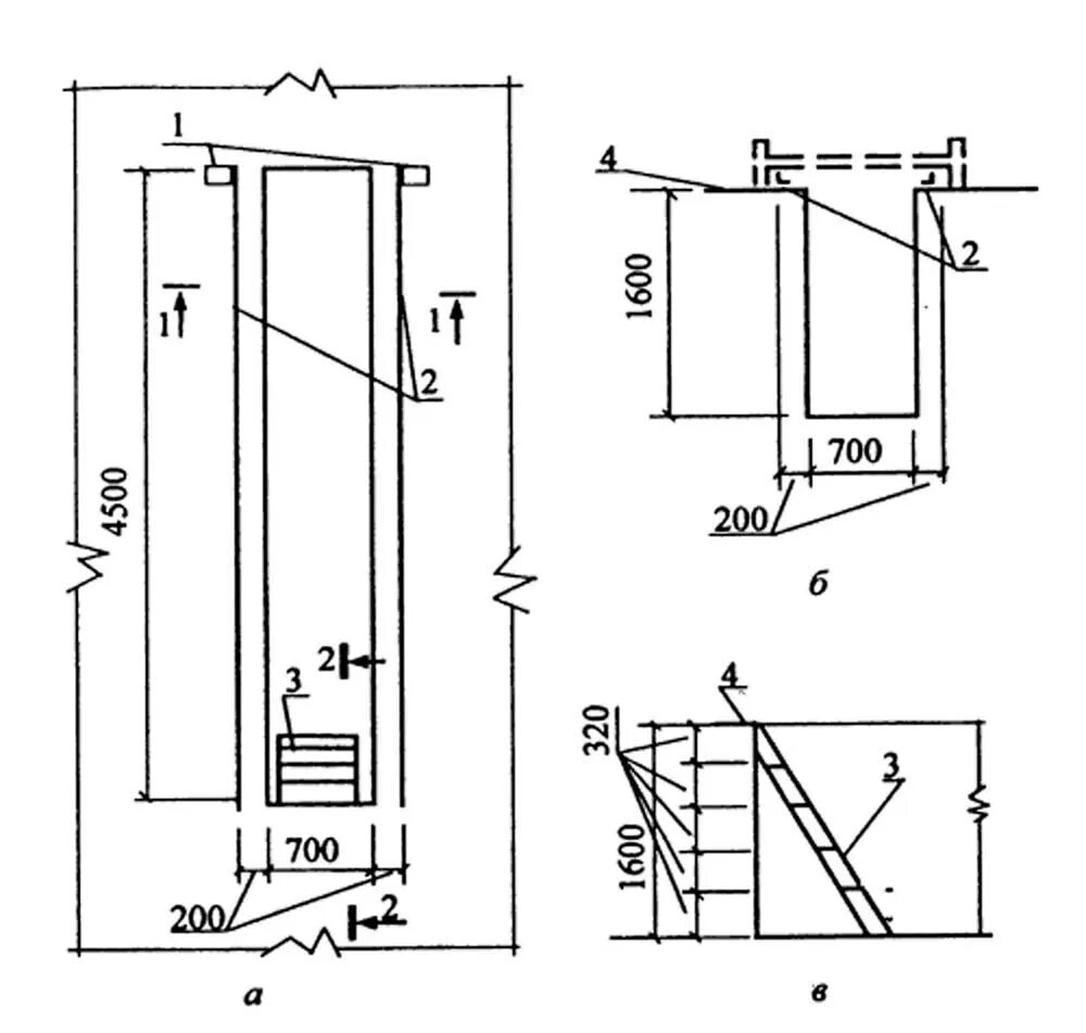
Яма какие размеры