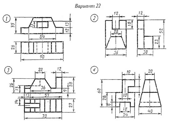
Задание 45 вариант 2