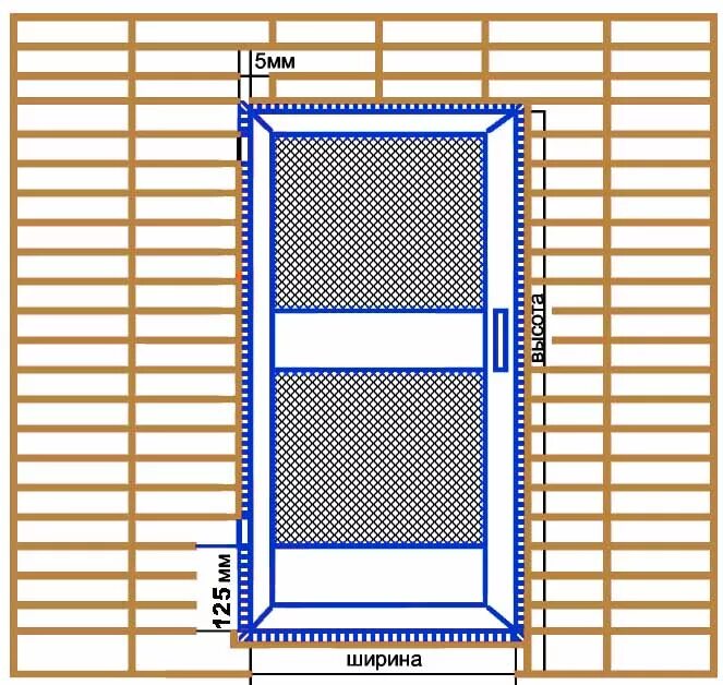
Замер сетки