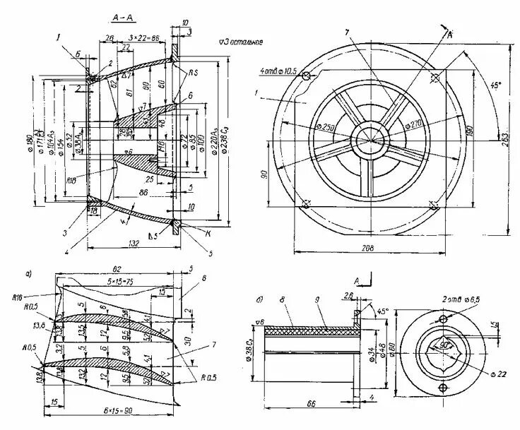
Зазор импеллера