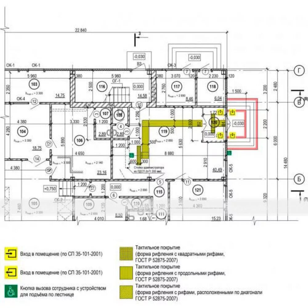
Здание мгн