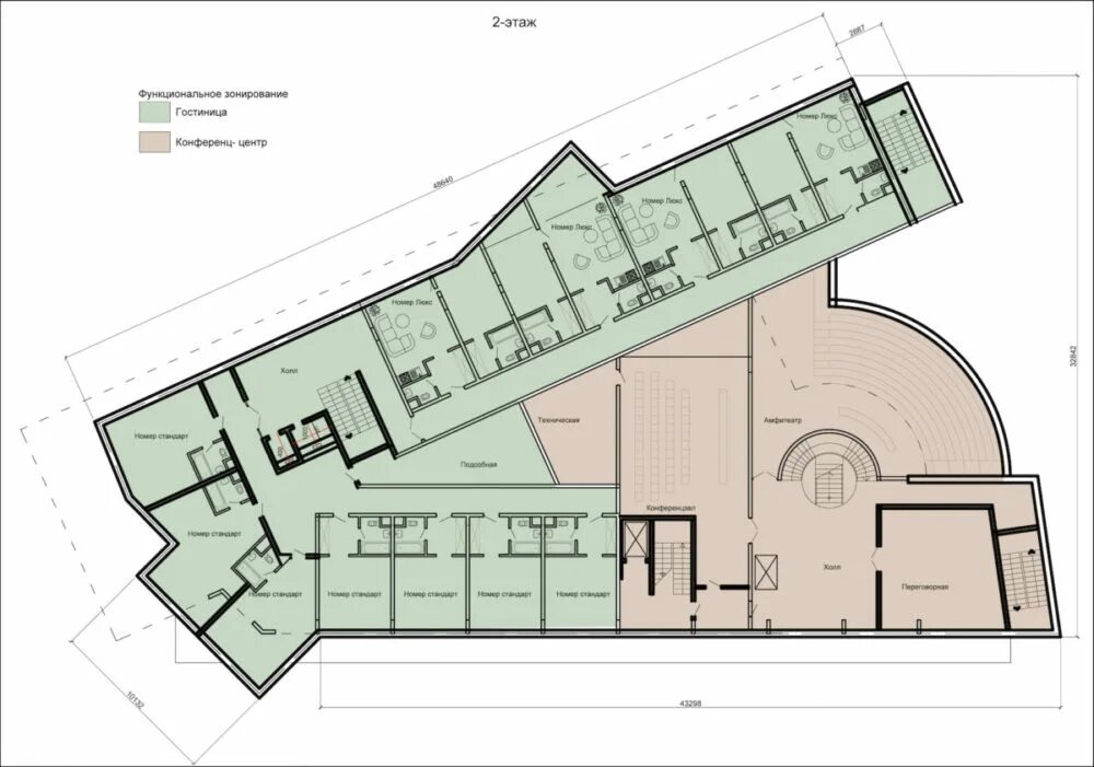
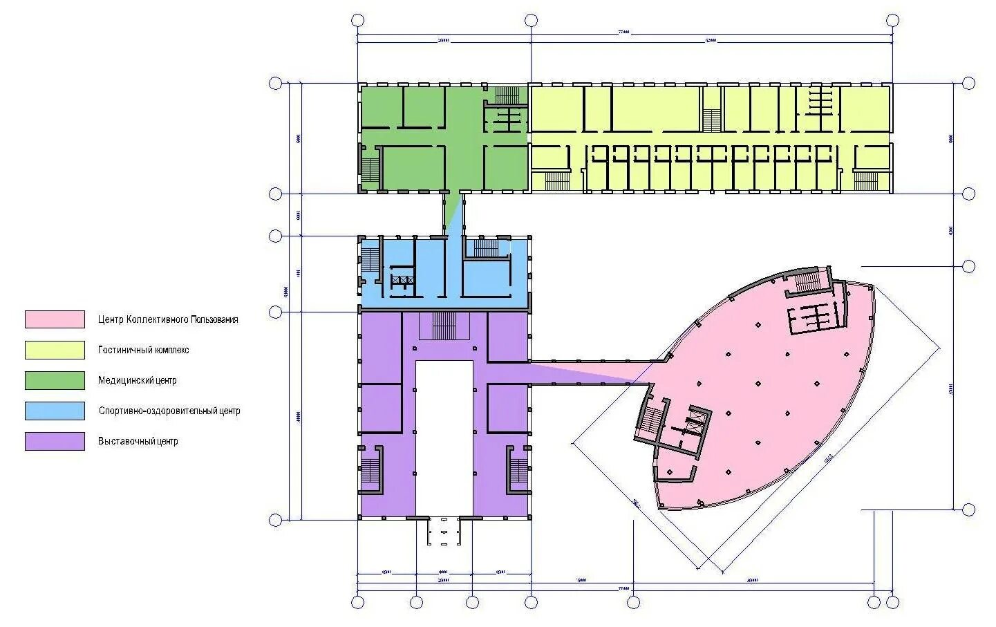
Зонирование общественных зданий